1/2


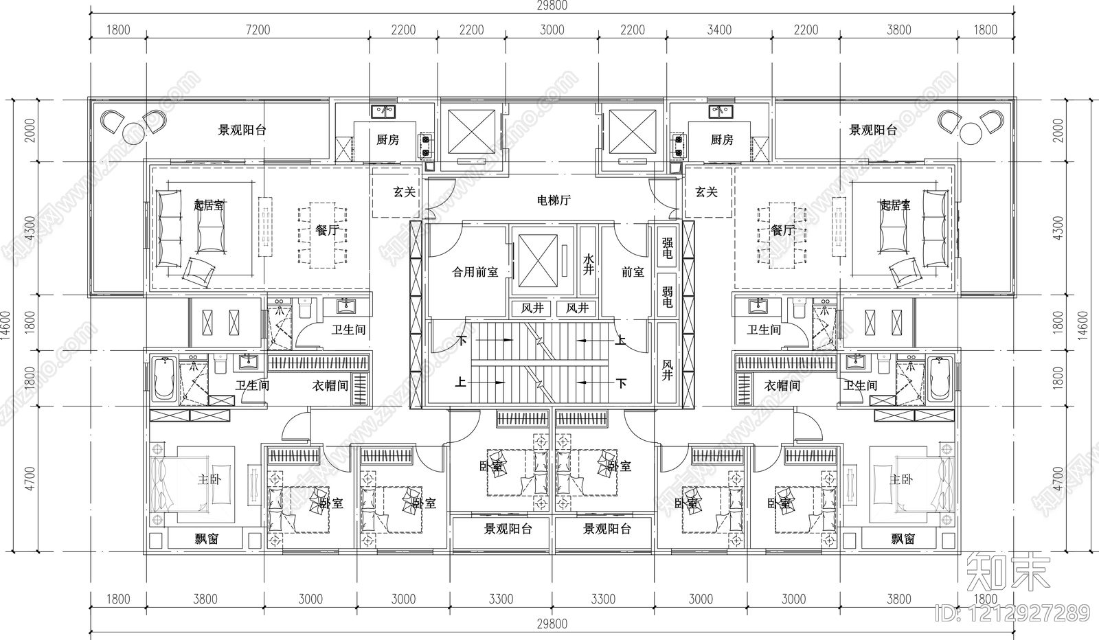
现代轻奢住宅楼建筑CAD下载
ID: 1212927289
复制
上传作者
清明雨揽月
清明雨揽月上传时间2026-03-05
文件大小0.12M
设计风格:--
CAD版本:CAD2014
包含文件:CAD
授权独家
立即下载
收藏
分享
举报
相关推荐
综合
居住建筑
住宅楼建筑
四合院
别墅建筑
其他居住建筑
高层住宅
多层住宅
低层住宅
公寓建筑
联排住宅


清明雨揽月上传时间2026-03-05
文件大小0.12M
设计风格:--
CAD版本:CAD2014
包含文件:CAD
授权独家