CAD频道
CAD图库
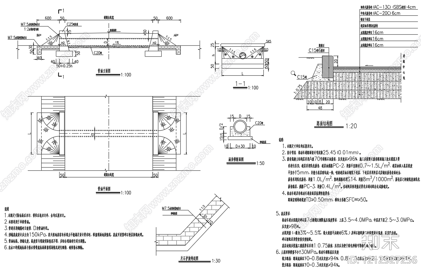
乡村改造 过路管涵及栏杆 路面结构图 涵管管涵 施工图
1/
2
Previous
Next
乡村改造CAD下载
ID: 1212927256
复制
上传作者
卡皮巴拉
上传时间
2026-03-05
文件大小
0.16M
设计风格:
--
CAD版本:
T20 天正建筑 V5.0
包含文件:
CAD
授权
独家
立即下载
收藏
分享
举报
相关推荐
综合
乡村景观
乡村改造
乡村振兴
其他乡村景观
农场