CAD频道
CAD图库
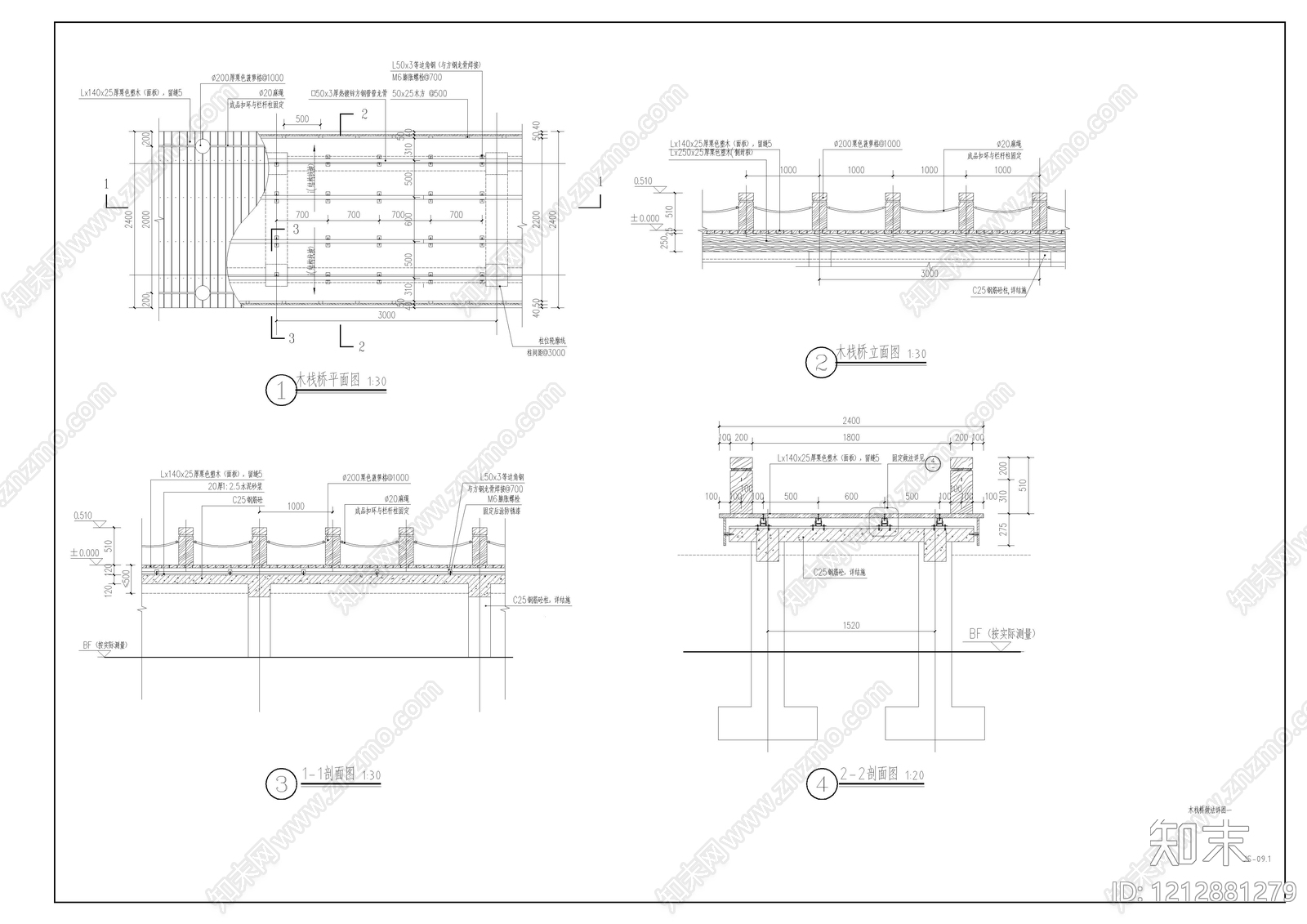
亲水平台 水上木栈桥 木栈道 施工图
1/
2
Previous
Next
亲水平台CAD下载
ID: 1212881279
复制
上传作者
干饭王
上传时间
2026-03-04
文件大小
7.89M
设计风格:
--
CAD版本:
CAD2014
包含文件:
CAD
授权
独家
立即下载
收藏
分享
举报
相关推荐
综合
水景
亲水平台
镜面水景
跌水景观
喷泉水景
雾森景观
互动水景
水池结构图
水景节点详图
水景设备图