CAD频道
CAD图库
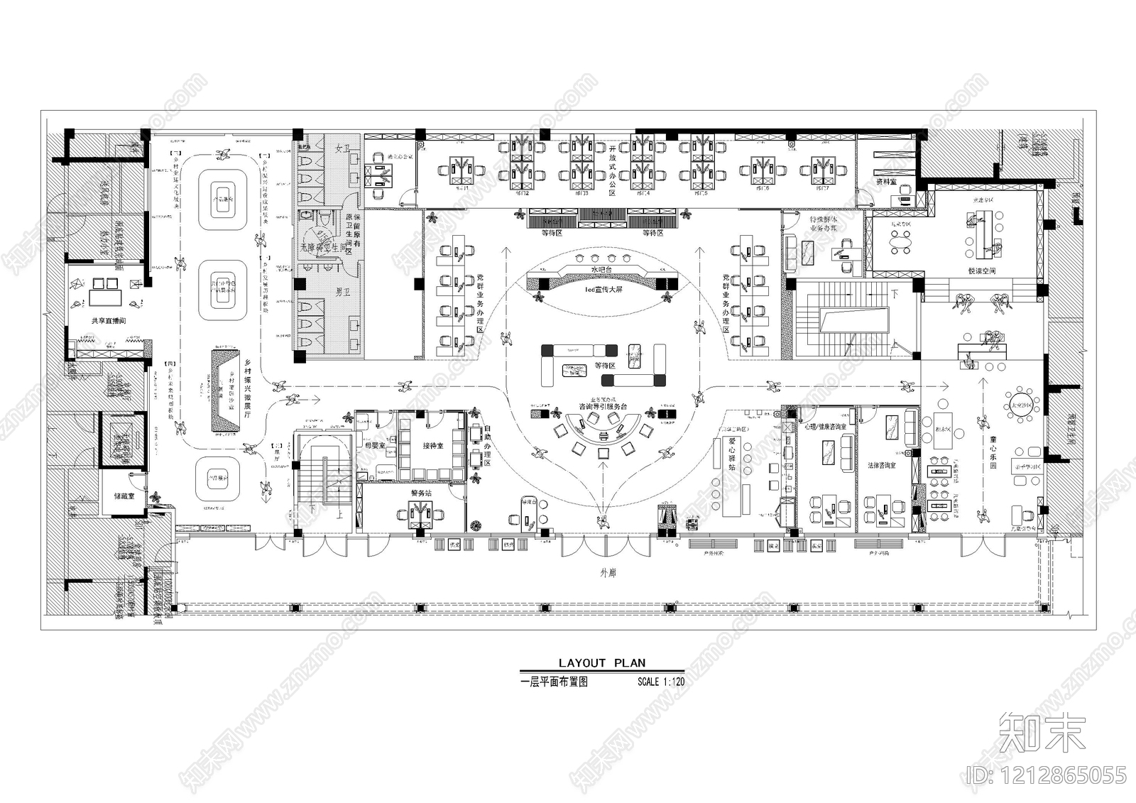
工装平面图 现代党群服务中心 施工图
1/
2
Previous
Next
工装平面图CAD下载
ID: 1212865055
复制
上传作者
小趴菜园
上传时间
2026-03-04
文件大小
1.78M
设计风格:
--
CAD版本:
CAD2004
包含文件:
CAD
授权
独家
立即下载
收藏
分享
举报
相关推荐
综合
平面图
工装平面图
景观平面图
规划平面图
其他平面图
小区平面图