
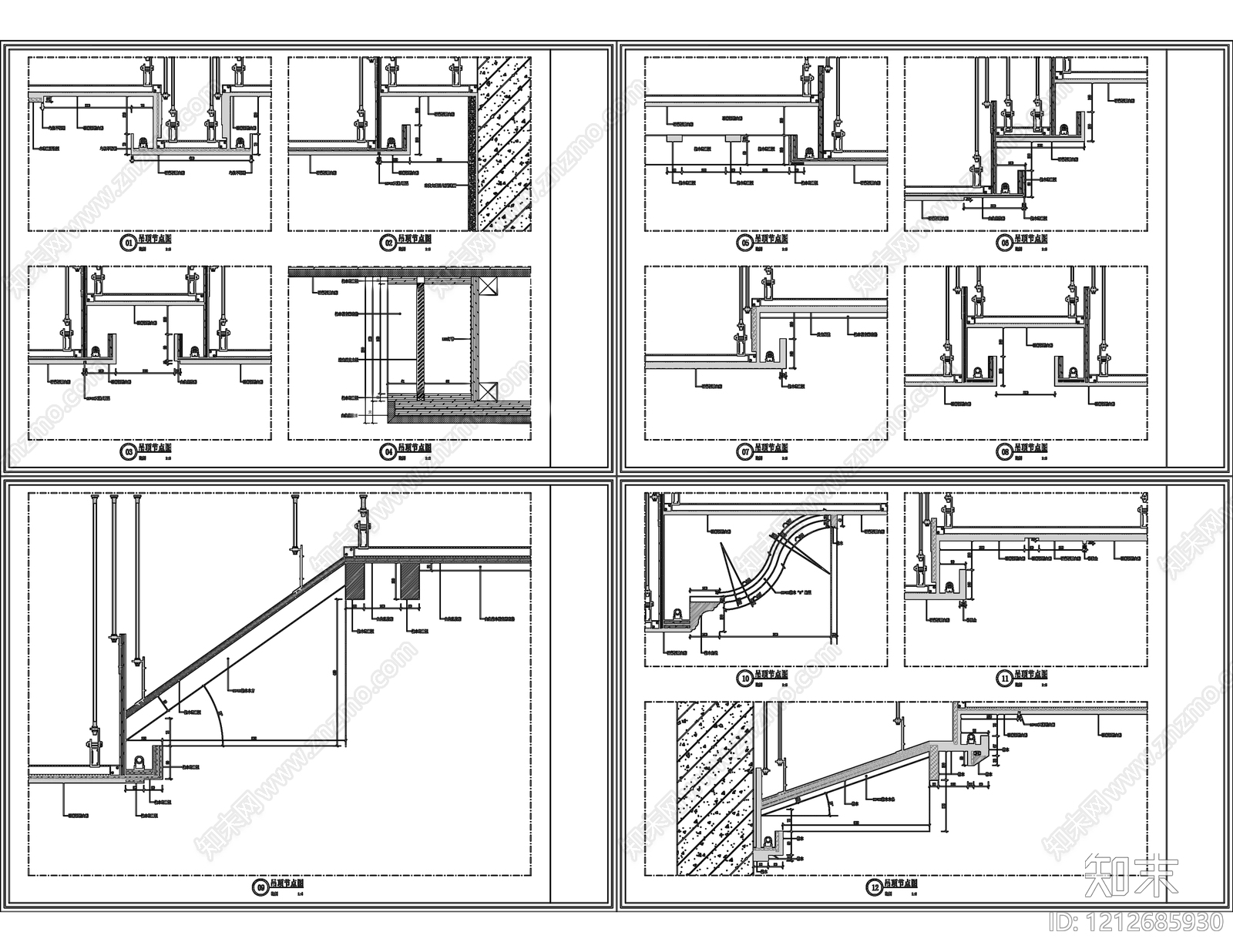
GRG吊顶节点CAD下载
ID: 1212685930
复制
上传作者
用户f4c4d0
用户f4c4d0上传时间2026-03-02
文件大小1.59M
设计风格:--
CAD版本:CAD2004
包含文件:CAD
授权独家
立即下载
收藏
分享
举报
相关推荐
综合
吊顶节点
GRG吊顶节点
方通吊顶
格栅吊顶
扣板吊顶
软膜天花
铝单板吊顶
石膏板吊顶
矿棉板吊顶

用户f4c4d0上传时间2026-03-02
文件大小1.59M
设计风格:--
CAD版本:CAD2004
包含文件:CAD
授权独家