CAD频道
CAD图库
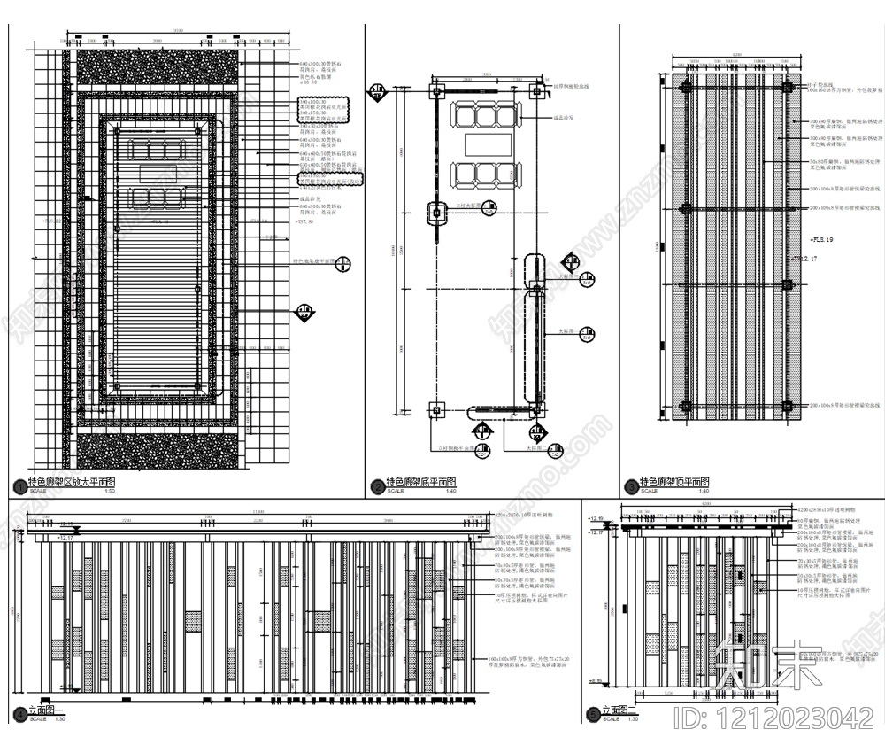
现代新中式廊架 钢结构廊架 室外城市客厅廊架 钢结构特色廊架 施工图
1/
3
Previous
Next
现代新中式廊架CAD下载
ID: 1212023042
复制
上传作者
樊笼的鸟
上传时间
2026-02-28
文件大小
6.42M
设计风格:
--
CAD版本:
CAD2007
包含文件:
CAD
授权
独家
立即下载
收藏
分享
举报
相关推荐
综合
景观小品
廊架
亭子
景墙
综合景观小品
雨棚
围墙
挡土墙
入口
景观坐凳