CAD频道
CAD图库
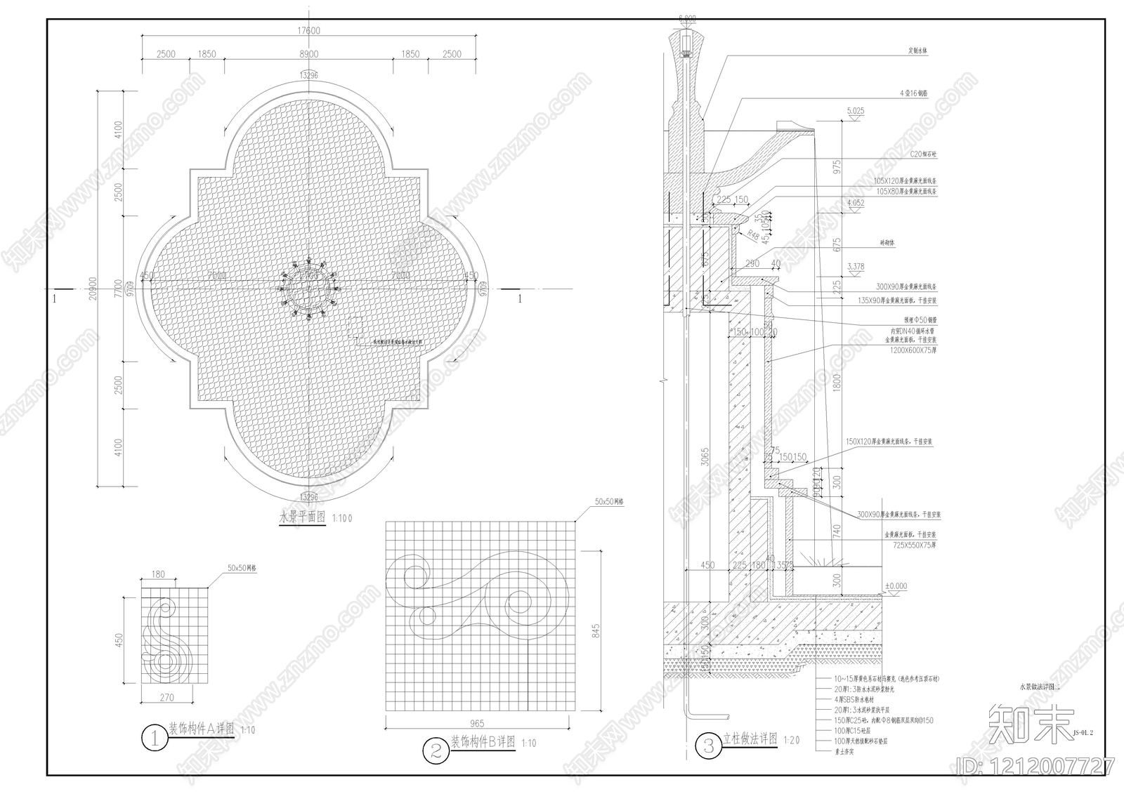
互动水景 欧式水景 喷泉水景 水景 施工图
1/
4
Previous
Next
互动水景CAD下载
ID: 1212007727
复制
上传作者
干饭王
上传时间
2026-02-28
文件大小
2.99M
设计风格:
--
CAD版本:
CAD2010
包含文件:
CAD
授权
独家
立即下载
收藏
分享
举报
相关推荐
综合
水景
互动水景
镜面水景
跌水景观
喷泉水景
雾森景观
亲水平台
水池结构图
水景节点详图
水景设备图