CAD频道
CAD图库
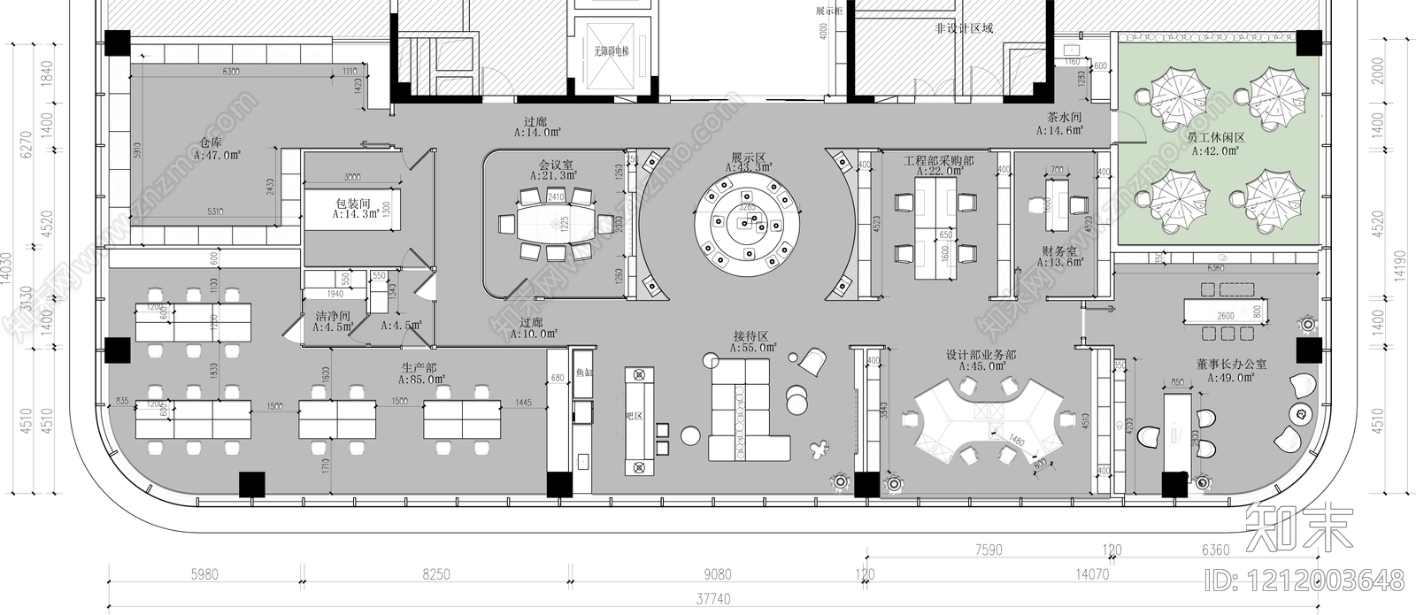
现代整体办公空间 产品展示区 产品生产部 生产办公区 施工图
1/
2
Previous
Next
现代整体办公空间CAD下载
ID: 1212003648
复制
上传作者
设计大咖
上传时间
2026-02-28
文件大小
0.35M
设计风格:
--
CAD版本:
CAD2005
包含文件:
CAD
授权
独家
立即下载
收藏
分享
举报
相关推荐
综合
办公空间
整体办公空间
开放办公室
会议室
休息室
独立办公室
直播间
茶水间
接待室
工作室