CAD频道
CAD图库
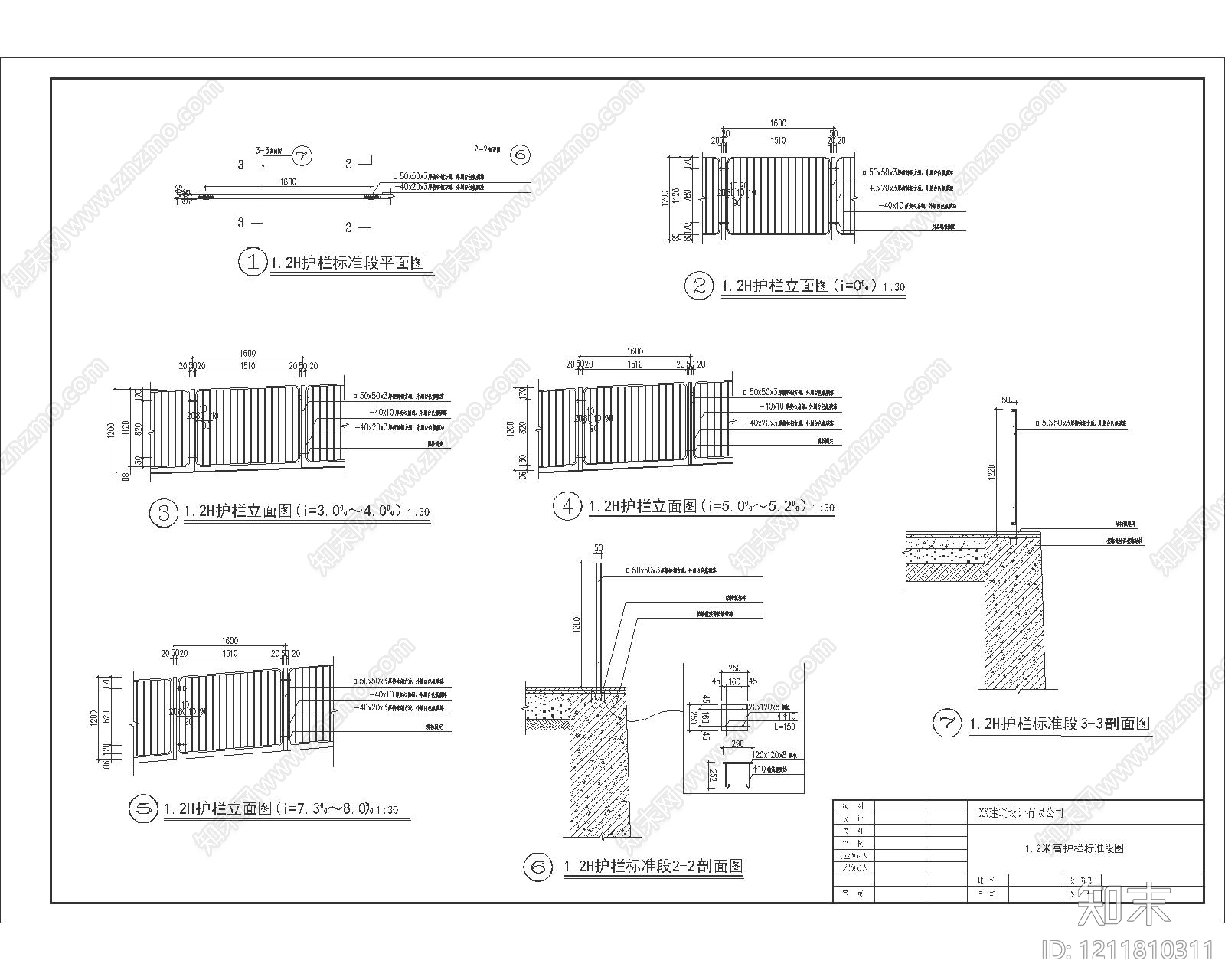
现代护栏 栏杆 简易栏杆 矮栏杆 施工图
1/
2
Previous
Next
现代护栏CAD下载
ID: 1211810311
复制
上传作者
云朵收藏者
上传时间
2026-02-27
文件大小
2.42M
设计风格:
--
CAD版本:
CAD2021
包含文件:
CAD
授权
独家
立即下载
收藏
分享
举报
相关推荐
综合
景观小品
栏杆
亭子
廊架
景墙
综合景观小品
雨棚
围墙
挡土墙
入口