1/8


现代新中式围墙CAD下载
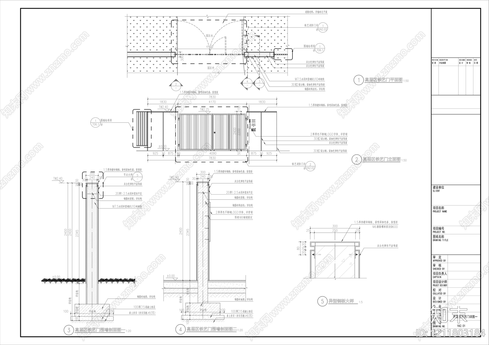
ID: 1211803184
复制
上传作者
ID:64824478
ID:64824478上传时间2026-02-27
文件大小1.96M
设计风格:--
CAD版本:T20 天正建筑 V5.0
包含文件:CAD
授权独家
立即下载
收藏
分享
举报
相关推荐
综合
景观小品
围墙
亭子
廊架
景墙
综合景观小品
雨棚
挡土墙
入口
景观坐凳


ID:64824478上传时间2026-02-27
文件大小1.96M
设计风格:--
CAD版本:T20 天正建筑 V5.0
包含文件:CAD
授权独家