1/6


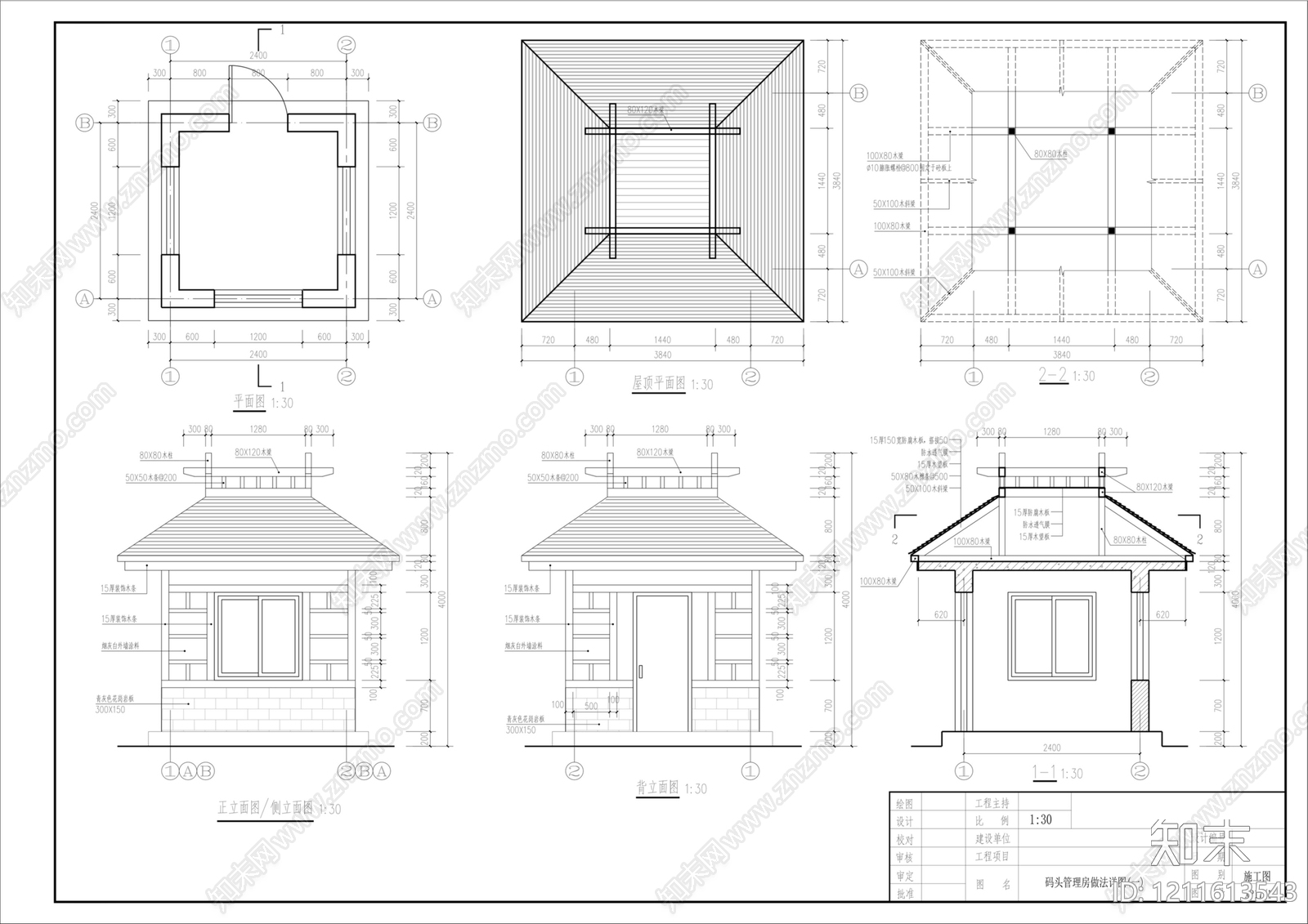
新中式中式门卫室建筑CAD下载
ID: 1211613543
复制
上传作者
ID:64824478
ID:64824478上传时间2026-02-26
文件大小0.28M
设计风格:--
CAD版本:T20 天正建筑 V5.0
包含文件:CAD
授权独家
立即下载
收藏
分享
举报
相关推荐
综合
公共建筑
门卫室建筑
会议中心建筑
公厕
行政机构建筑
其他公共建筑
医院建筑
停车楼
消防站
集装箱


ID:64824478上传时间2026-02-26
文件大小0.28M
设计风格:--
CAD版本:T20 天正建筑 V5.0
包含文件:CAD
授权独家