1/2


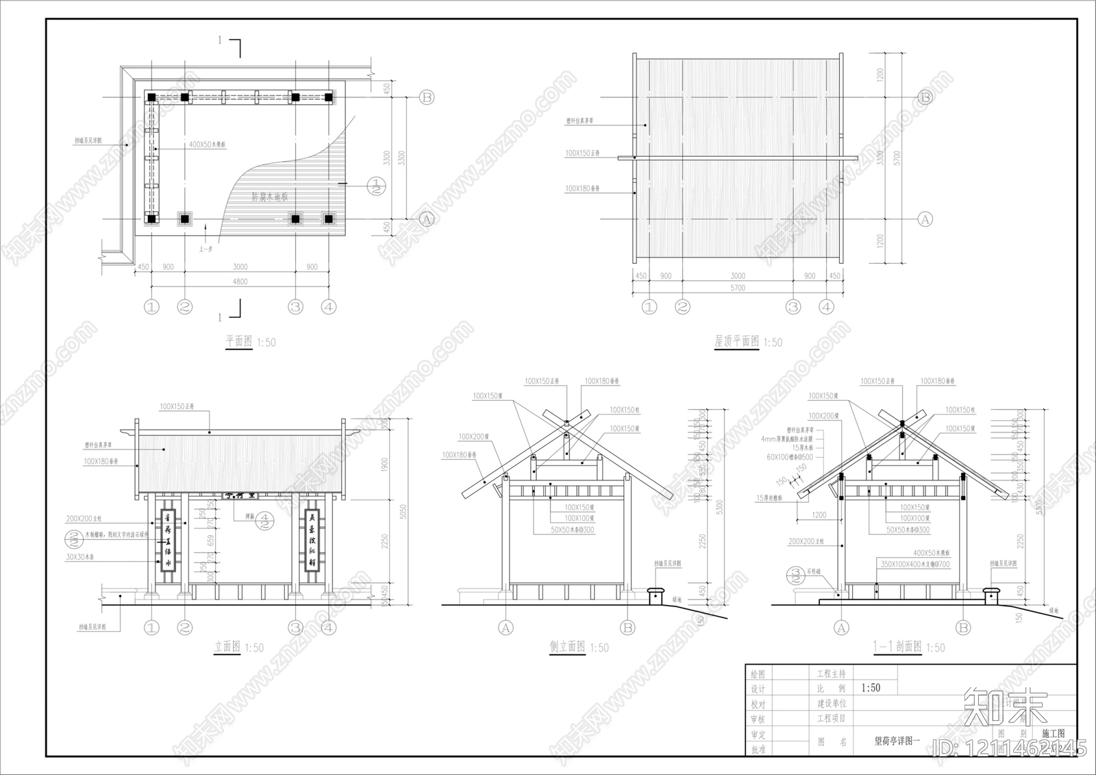
新中式中式亭子CAD下载
ID: 1211462145
复制
上传作者
ID:64824478
ID:64824478上传时间2026-02-26
文件大小0.27M
设计风格:--
CAD版本:T20 天正建筑 V5.0
包含文件:CAD
授权独家
立即下载
收藏
分享
举报
相关推荐
综合
景观小品
亭子
廊架
景墙
综合景观小品
雨棚
围墙
挡土墙
入口
景观坐凳


ID:64824478上传时间2026-02-26
文件大小0.27M
设计风格:--
CAD版本:T20 天正建筑 V5.0
包含文件:CAD
授权独家