CAD频道
CAD图库
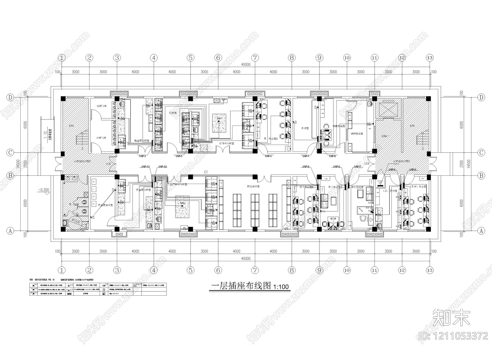
现代实验室 综合楼实验室施 施工图
1/
3
Previous
Next
现代实验室CAD下载
ID: 1211053372
复制
上传作者
小趴菜园
上传时间
2026-02-24
文件大小
10.45M
设计风格:
--
CAD版本:
CAD2004
包含文件:
CAD
授权
独家
立即下载
收藏
分享
举报
相关推荐
综合
教育空间
实验室
幼儿园
学校
培训中心
其他教育空间
教室
画室
舞蹈室