CAD频道
CAD图库
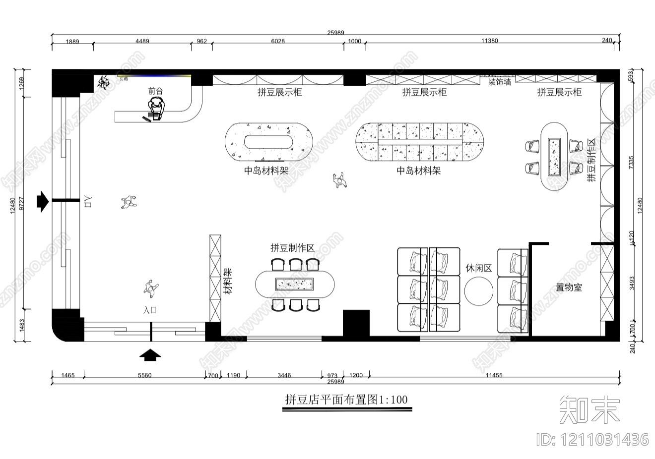
现代其他商业空间 拼豆店平面图 商业空间 店铺平面图 效果图 专卖店 施...
1/
6
Previous
Next
现代其他商业空间CAD下载
ID: 1211031436
复制
上传作者
制图大师
上传时间
2026-02-23
文件大小
1.38M
设计风格:
--
CAD版本:
CAD2004
包含文件:
CAD
授权
独家
立即下载
收藏
分享
举报
相关推荐
综合
商业空间
其他商业空间
售楼处
商场
超市
服装店
书店
美甲店
珠宝店
4s店