CAD频道
CAD图库
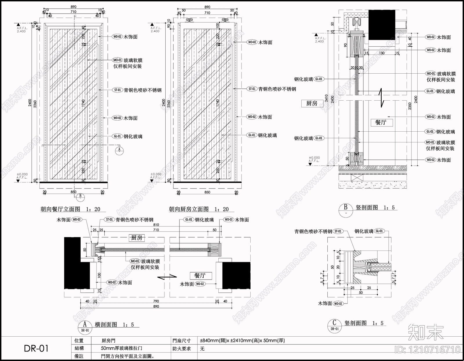
玻璃门节点 厨房玻璃门 推拉门 钢化玻璃门 门节点 施工图
1/
2
Previous
Next
玻璃门节点CAD下载
ID: 1210716710
复制
上传作者
XE1982
上传时间
2026-02-10
文件大小
0.26M
设计风格:
--
CAD版本:
CAD2014
包含文件:
CAD
授权
独家
立即下载
收藏
分享
举报
相关推荐
综合
门节点
玻璃门节点
入户门
铁艺大门
月洞门
推拉门节点
隐形门节点
综合门节点