CAD频道
CAD图库
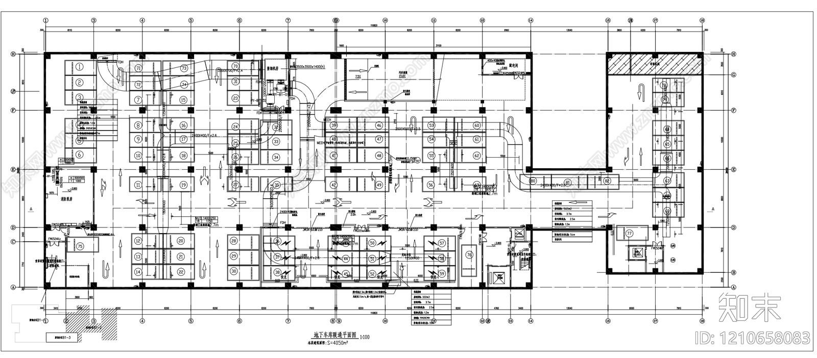
通风系统 美丽健康科创基地 综合楼 暖通图纸 施工图
1/
3
Previous
Next
通风系统CAD下载
ID: 1210658083
复制
上传作者
醉生卿-
上传时间
2026-02-10
文件大小
2.02M
设计风格:
--
CAD版本:
CAD2018
包含文件:
CAD
授权
独家
立即下载
收藏
分享
举报
相关推荐
综合
暖通空调
通风系统
空调系统
采暖系统
防排烟系统
净化空调系统
冷热源系统
自控系统
暖通机房
风口系统