CAD频道
CAD图库
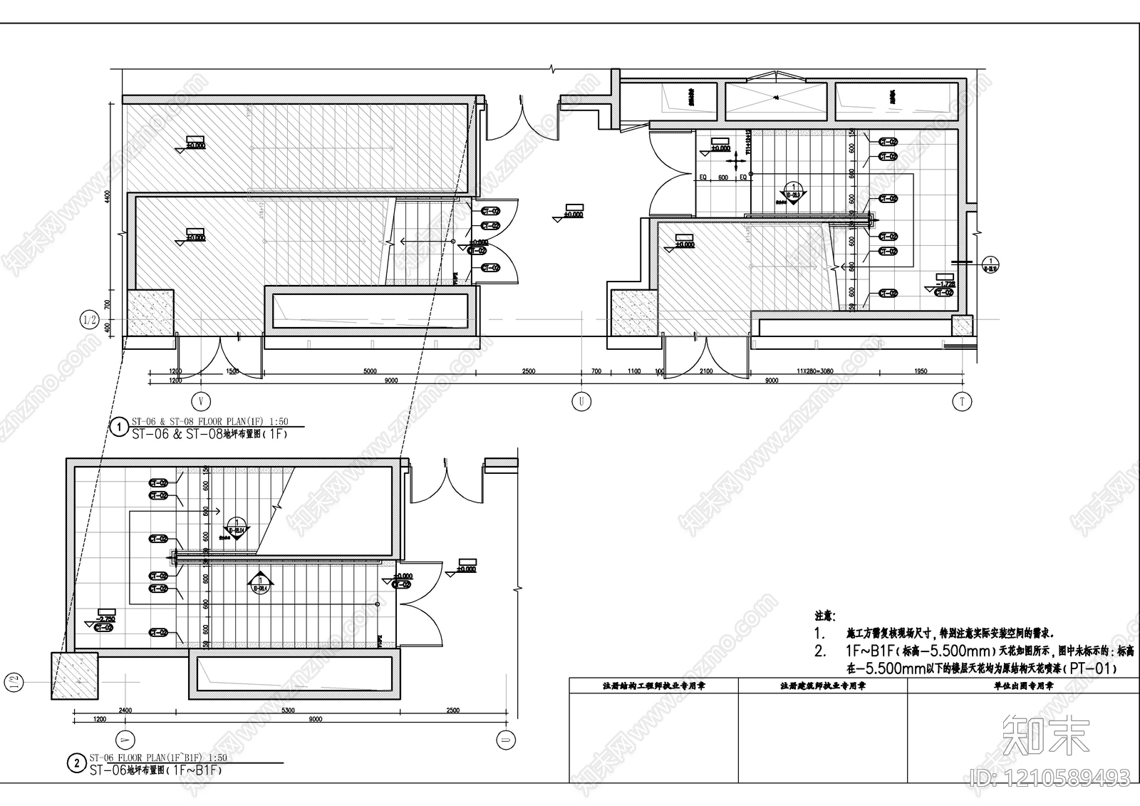
现代楼梯间 办公楼梯 施工图
1/
3
Previous
Next
现代楼梯间CAD下载
ID: 1210589493
复制
上传作者
xin图
上传时间
2026-02-10
文件大小
1.84M
设计风格:
--
CAD版本:
CAD2004
包含文件:
CAD
授权
普通
立即下载
收藏
分享
举报
相关推荐
综合
公共空间
楼梯间
其他公共空间
公共卫生间
宿舍
门头
服务中心
活动中心
会展
母婴室