CAD频道
CAD图库
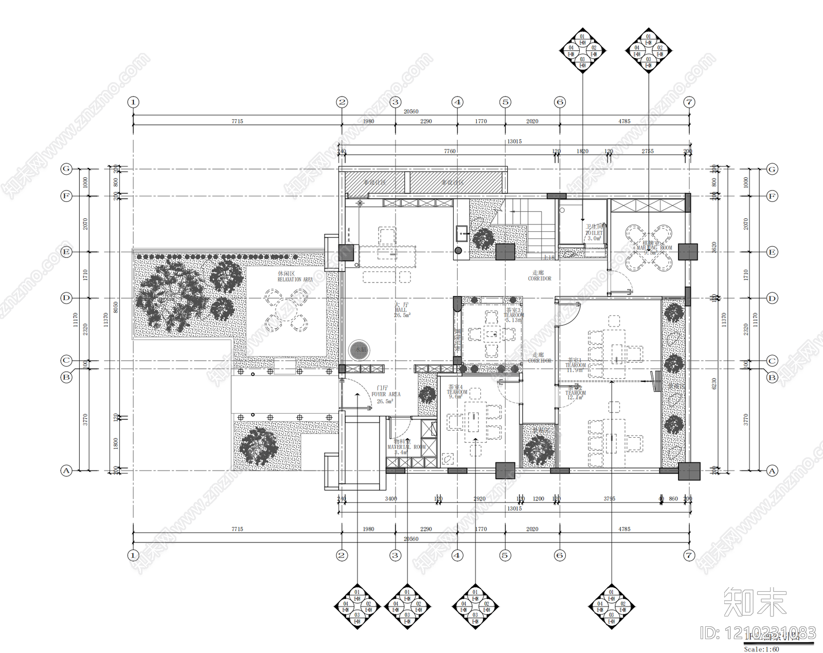
现代新中式茶馆 茶楼 施工图
1/
2
Previous
Next
现代新中式茶馆CAD下载
ID: 1210231083
复制
上传作者
灵感碎片
上传时间
2026-02-08
文件大小
329.69M
设计风格:
--
CAD版本:
CAD2010
包含文件:
CAD
授权
独家
立即下载
收藏
分享
举报
相关推荐
综合
休闲娱乐空间
茶馆
会所
美容院
理发店
电影院
健身房
KTV
酒吧
网吧