CAD频道
CAD图库
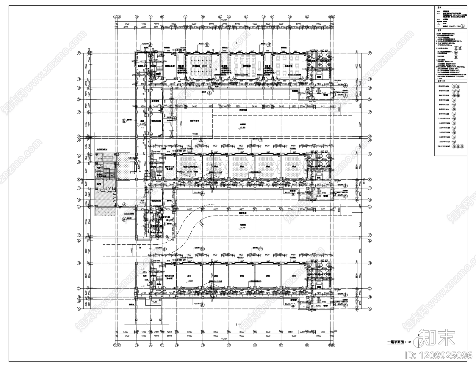
现代学校建筑 小学教学楼 实验楼建筑平面 施工图
1/
2
Previous
Next
现代学校建筑CAD下载
ID: 1209925096
复制
上传作者
醉生卿-
上传时间
2026-02-06
文件大小
3.56M
设计风格:
--
CAD版本:
CAD2008
包含文件:
CAD
授权
独家
立即下载
收藏
分享
举报
相关推荐
综合
教育建筑
学校建筑
幼儿园建筑