CAD频道
CAD图库
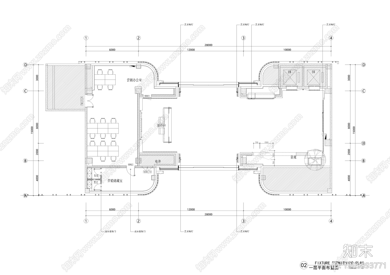
现代售楼处 售楼部 施工图
1/
4
Previous
Next
现代售楼处CAD下载
ID: 1209893771
复制
上传作者
苏苏过来(互粉)
上传时间
2026-02-06
文件大小
7.24M
设计风格:
--
CAD版本:
CAD2004
包含文件:
CAD
授权
独家
立即下载
收藏
分享
举报
相关推荐
综合
商业空间
售楼处
商场
其他商业空间
超市
服装店
书店
美甲店
珠宝店
4s店