
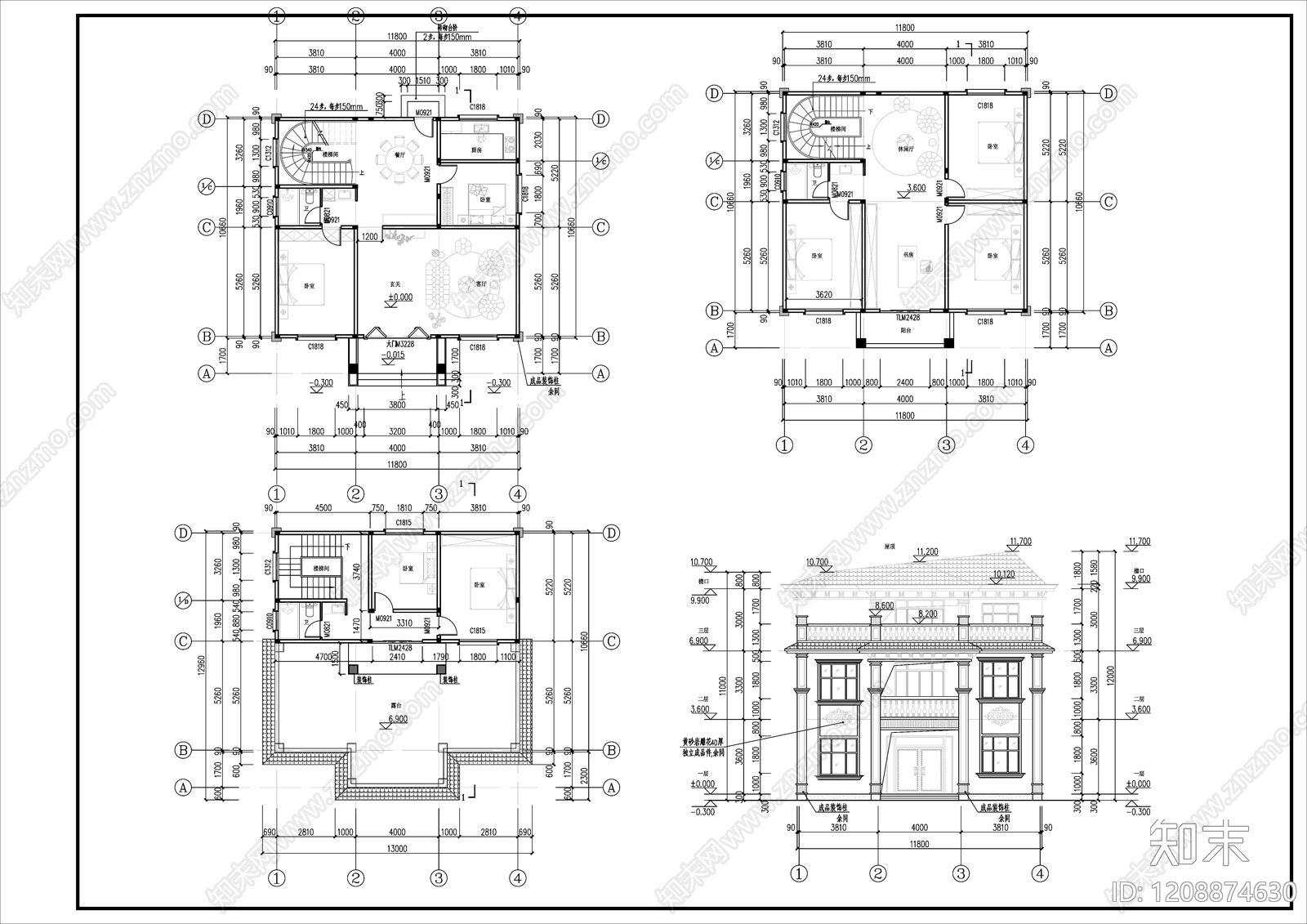
轻奢别墅建筑CAD下载
ID: 1208874630
复制
上传作者
自建房建筑设计佬
自建房建筑设计佬上传时间2026-01-30
文件大小1.36M
设计风格:--
CAD版本:天正建筑 2014
包含文件:CAD
授权独家
立即下载
收藏
分享
举报
相关推荐
综合
居住建筑
别墅建筑
住宅楼建筑
四合院
其他居住建筑
高层住宅
多层住宅
低层住宅
公寓建筑
联排住宅

自建房建筑设计佬上传时间2026-01-30
文件大小1.36M
设计风格:--
CAD版本:天正建筑 2014
包含文件:CAD
授权独家