CAD频道
CAD图库
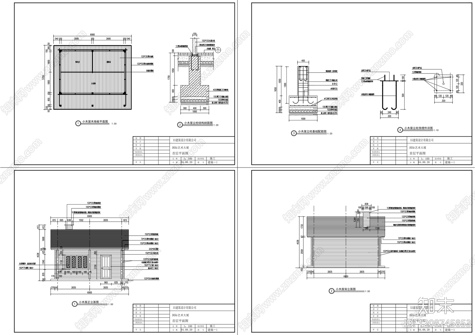
现代民宿建筑 景观小木屋建筑图 施工图
1/
4
Previous
Next
现代民宿建筑CAD下载
ID: 1208745853
复制
上传作者
常威打来福
上传时间
2026-01-29
文件大小
0.43M
设计风格:
--
CAD版本:
天正建筑 2021
包含文件:
CAD
授权
独家
立即下载
收藏
分享
举报
相关推荐
综合
酒店民宿建筑
民宿建筑
酒店建筑