CAD频道
CAD图库
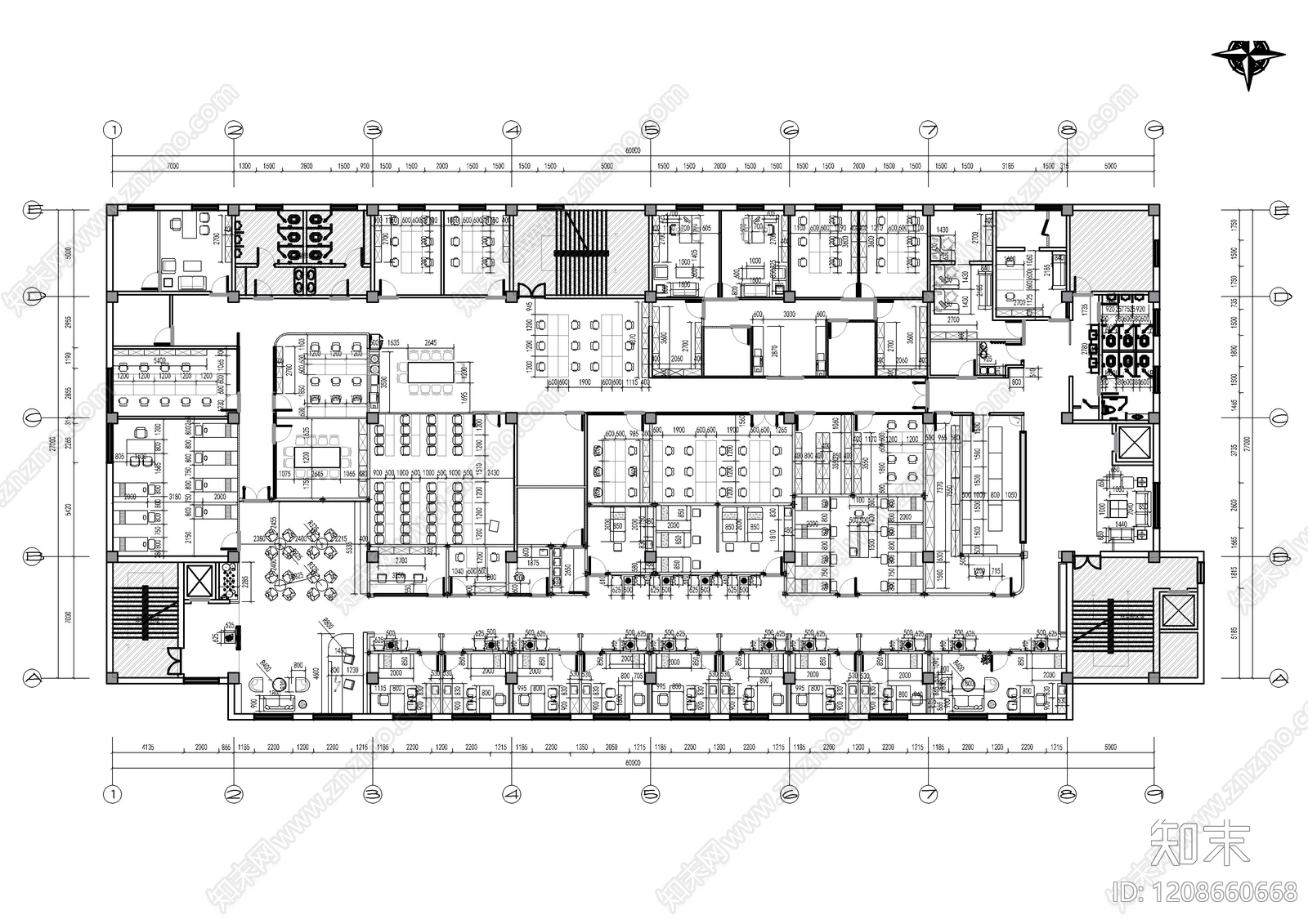
现代中医馆 杏林苑中医诊疗中 施工图
1/
3
Previous
Next
现代中医馆CAD下载
ID: 1208660668
复制
上传作者
小趴菜园
上传时间
2026-01-26
文件大小
38.32M
设计风格:
--
CAD版本:
CAD2004
包含文件:
CAD
授权
独家
立即下载
收藏
分享
举报
相关推荐
综合
医疗空间
中医馆
医院
养老院
宠物医院
月子中心
其他医疗空间