1/5


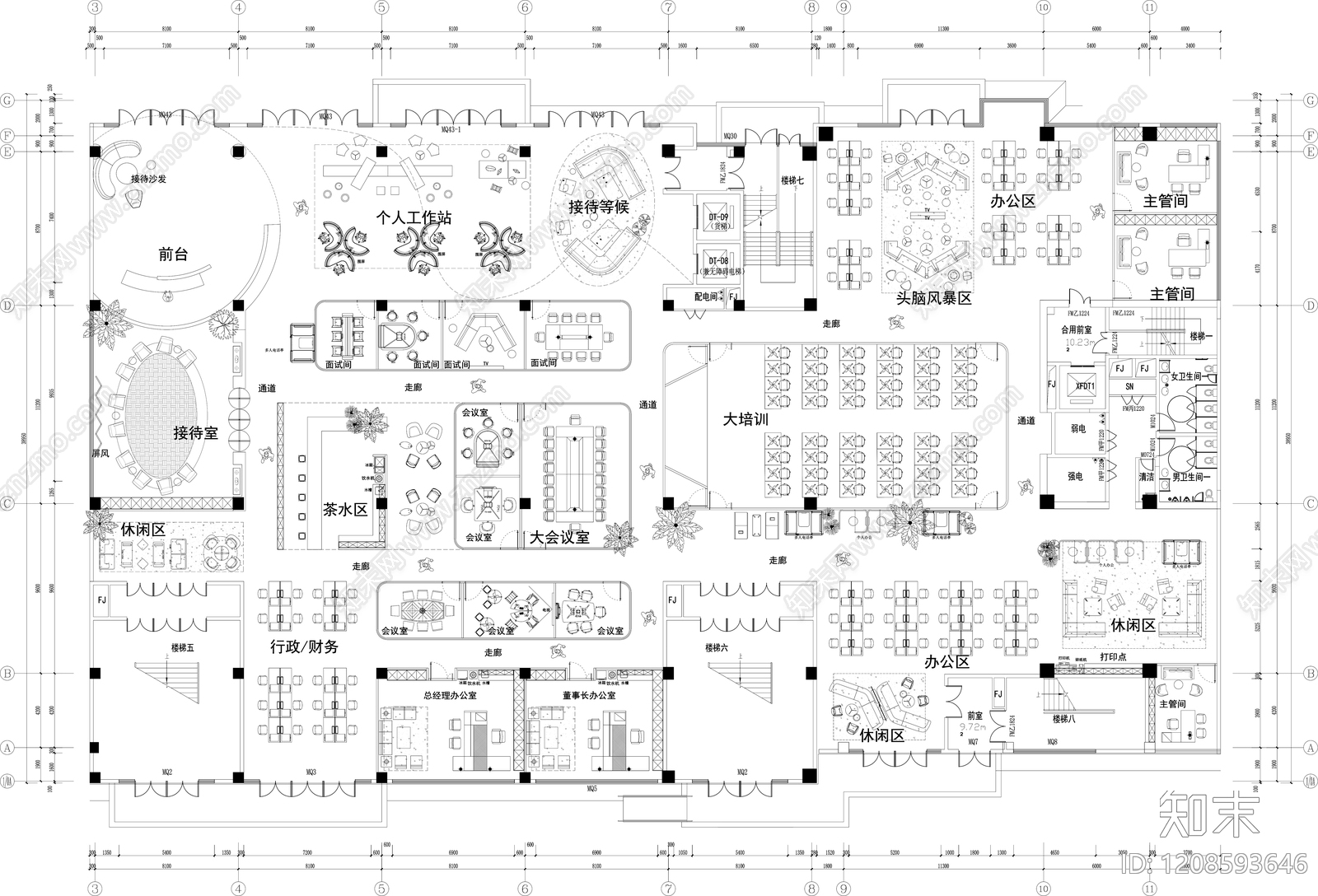
现代整体办公空间CAD下载
ID: 1208593646
复制
上传作者
候鸟1366
候鸟1366上传时间2026-01-23
文件大小2.05M
设计风格:--
CAD版本:CAD2013
包含文件:CAD
授权独家
立即下载
收藏
分享
举报
相关推荐
综合
办公空间
整体办公空间
开放办公室
会议室
休息室
独立办公室
直播间
茶水间
接待室
工作室


候鸟1366上传时间2026-01-23
文件大小2.05M
设计风格:--
CAD版本:CAD2013
包含文件:CAD
授权独家