CAD频道
CAD图库
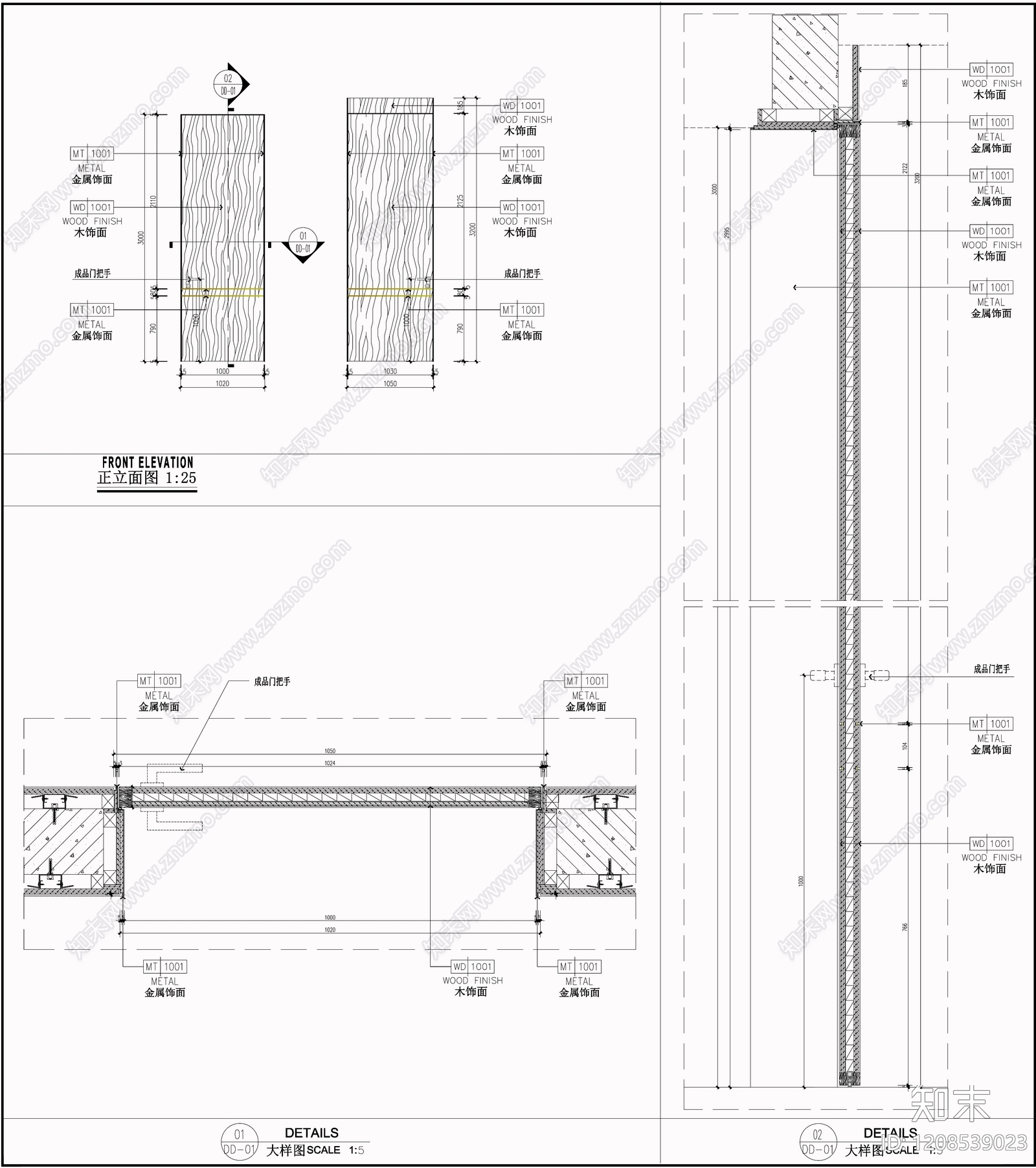
综合门节点 木门 单开门 平开门 卧室门 门节点 施工图
1/
2
Previous
Next
综合门节点CAD下载
ID: 1208539023
复制
上传作者
小丽9222
上传时间
2026-01-21
文件大小
0.88M
设计风格:
--
CAD版本:
CAD2014
包含文件:
CAD
授权
独家
立即下载
收藏
分享
举报
相关推荐
综合
门节点
综合门节点
入户门
铁艺大门
月洞门
玻璃门节点
推拉门节点
隐形门节点