CAD频道
CAD图库
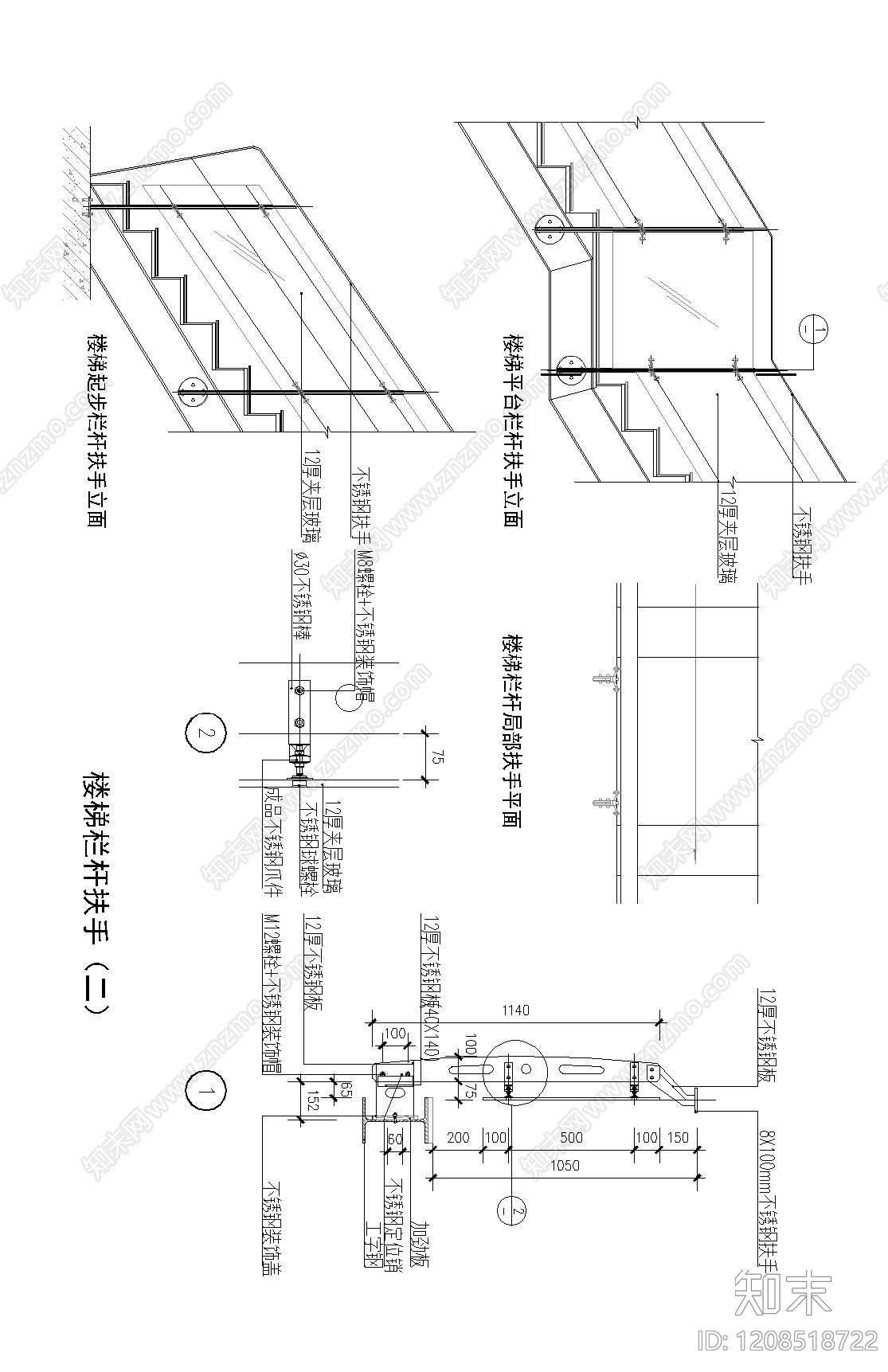
现代楼梯节点 木扶手楼梯栏杆 楼梯剖面 玻璃扶手 施工图
现代楼梯节点CAD下载
ID: 1208518722
复制
上传作者
yong
上传时间
2026-01-20
文件大小
0.12M
设计风格:
--
CAD版本:
--
包含文件:
CAD
授权
独家
立即下载
收藏
分享
举报
相关推荐
综合
节点详图
楼梯节点
吊顶节点
墙面节点
地面节点
门节点
其他节点详图
建筑工程节点
景观小品
水景