1/10


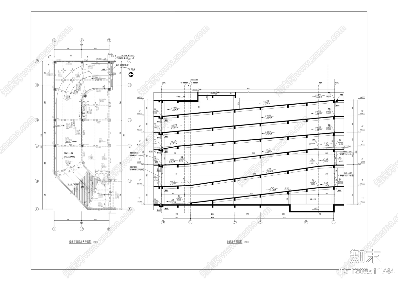
现代停车楼CAD下载
ID: 1208511744
复制
上传作者
曾经的曾经
曾经的曾经上传时间2026-01-20
文件大小18.94M
设计风格:--
CAD版本:天正建筑 2014
包含文件:CAD
授权普通
立即下载
收藏
分享
举报
相关推荐
综合
公共建筑
停车楼
会议中心建筑
公厕
行政机构建筑
其他公共建筑
医院建筑
门卫室建筑
消防站
集装箱


曾经的曾经上传时间2026-01-20
文件大小18.94M
设计风格:--
CAD版本:天正建筑 2014
包含文件:CAD
授权普通