1/10


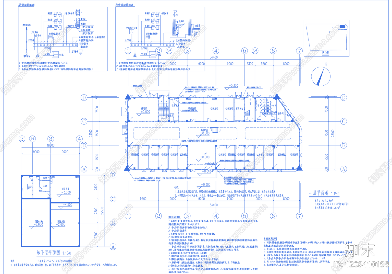
火灾自动报警系统CAD下载
ID: 1208410198
复制
上传作者
巴迪咔哇
巴迪咔哇上传时间2026-01-15
文件大小11.3M
设计风格:--
CAD版本:CAD2024
包含文件:CAD
授权独家
立即下载
收藏
分享
举报
相关推荐
综合
建筑电气
火灾自动报警系统
供配电系统
照明系统
动力系统
防雷接地系统
安全防范系统
通信网络系统
门禁系统
视频监控系统


巴迪咔哇上传时间2026-01-15
文件大小11.3M
设计风格:--
CAD版本:CAD2024
包含文件:CAD
授权独家