CAD频道
CAD图库
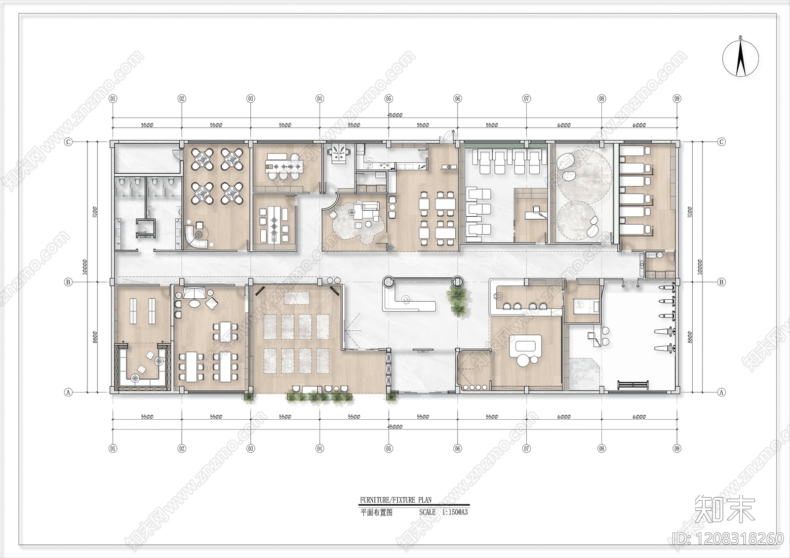
现代极简活动中心 康养活动中心 社区活动中心 老年活动中心 施工图
1/
3
Previous
Next
现代极简活动中心CAD下载
ID: 1208318260
复制
上传作者
sir
上传时间
2026-01-12
文件大小
46.55M
设计风格:
--
CAD版本:
CAD2020
包含文件:
CAD
授权
独家
立即下载
收藏
分享
举报
相关推荐
综合
公共空间
活动中心
其他公共空间
公共卫生间
宿舍
门头
服务中心
会展
母婴室
档案室