CAD频道
CAD图库
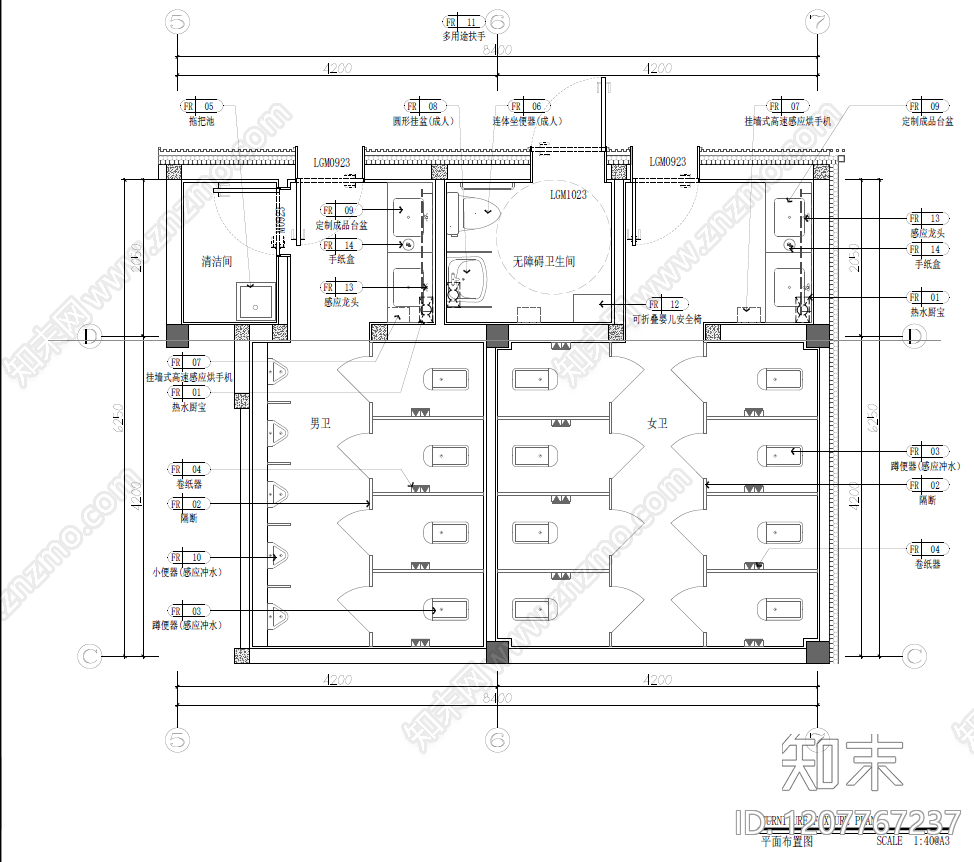
新中式公共卫生间 公共卫生间 施工图
1/
3
Previous
Next
新中式公共卫生间CAD下载
ID: 1207767237
复制
上传作者
cbm23
上传时间
2026-01-08
文件大小
1.43M
设计风格:
--
CAD版本:
CAD2024
包含文件:
CAD
授权
独家
立即下载
收藏
分享
举报
相关推荐
综合
公共空间
公共卫生间
其他公共空间
宿舍
门头
服务中心
活动中心
会展
母婴室
档案室