1/10


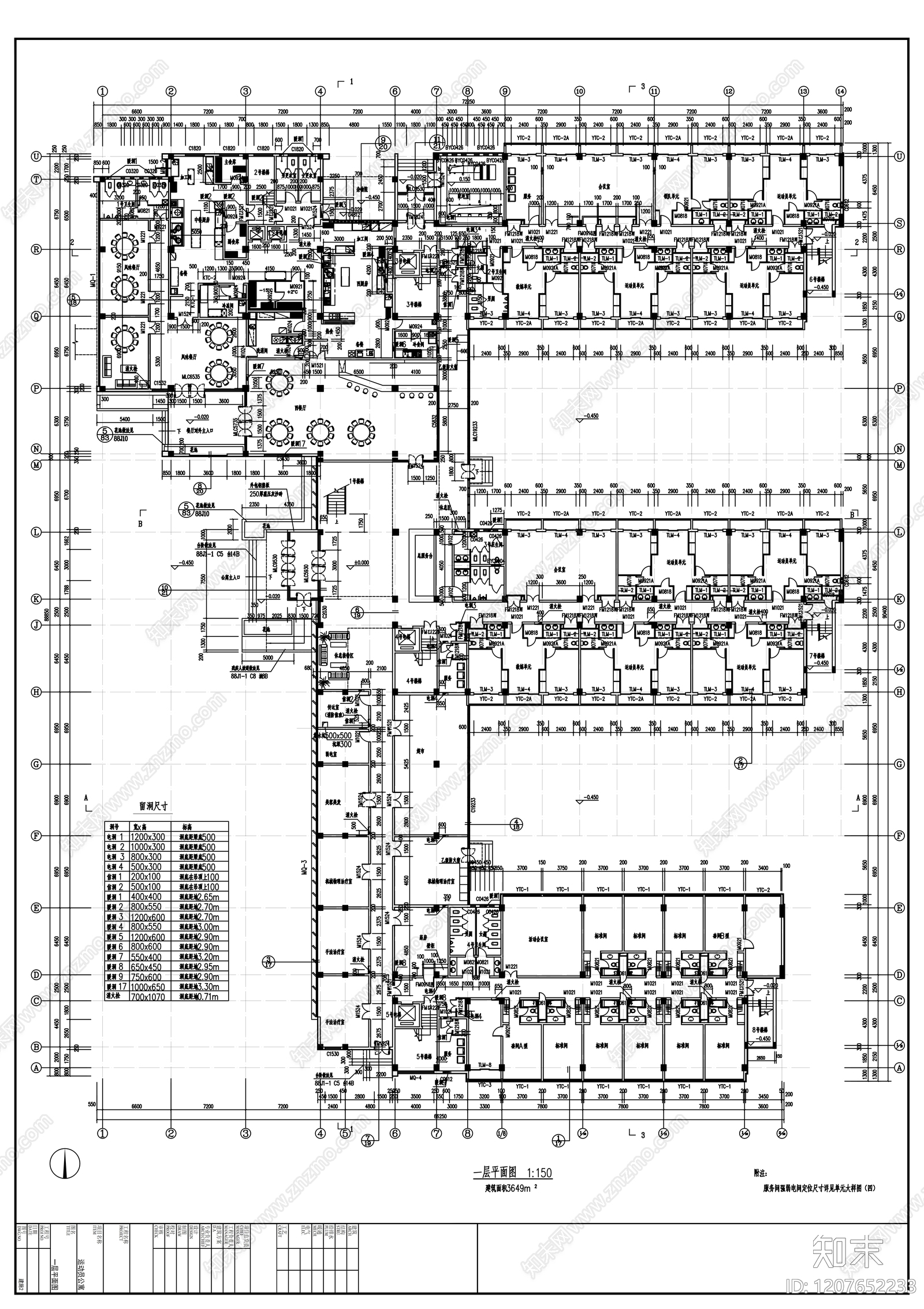
现代住宅楼建筑CAD下载
ID: 1207652233
复制
上传作者
常威打来福
常威打来福上传时间2026-01-04
文件大小1.71M
设计风格:--
CAD版本:天正建筑 2021
包含文件:CAD
授权独家
立即下载
收藏
分享
举报
相关推荐
综合
居住建筑
住宅楼建筑
四合院
别墅建筑
其他居住建筑
高层住宅
多层住宅
低层住宅
公寓建筑
联排住宅


常威打来福上传时间2026-01-04
文件大小1.71M
设计风格:--
CAD版本:天正建筑 2021
包含文件:CAD
授权独家