1/2


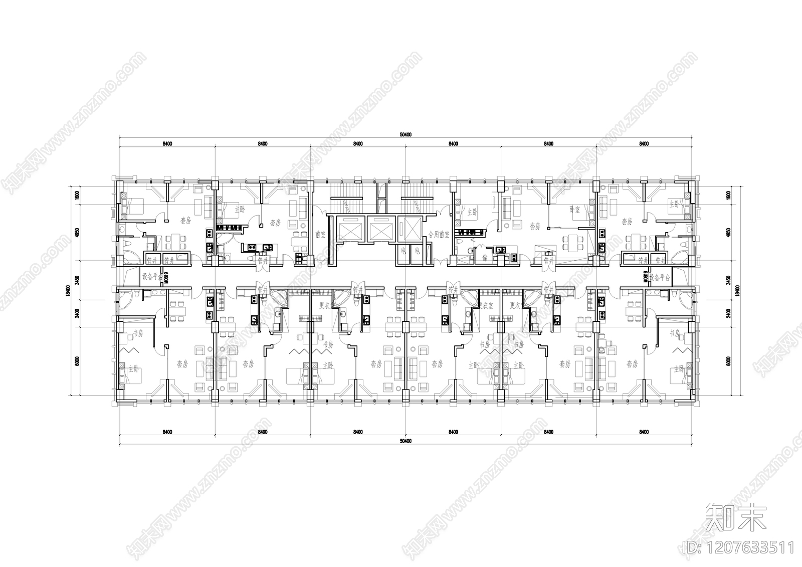
建筑平面布置图CAD下载
ID: 1207633511
复制
上传作者
扎哈哈迪德1122(关注必回关)
扎哈哈迪德1122(关注必回关)上传时间2026-01-03
文件大小0.39M
设计风格:--
CAD版本:CAD2004
包含文件:CAD
授权独家
立即下载
收藏
分享
举报
相关推荐
综合
建筑平面图
建筑平面布置图
顶棚平面图
地面平面图
建筑改建


扎哈哈迪德1122(关注必回关)上传时间2026-01-03
文件大小0.39M
设计风格:--
CAD版本:CAD2004
包含文件:CAD
授权独家