CAD频道
CAD图库
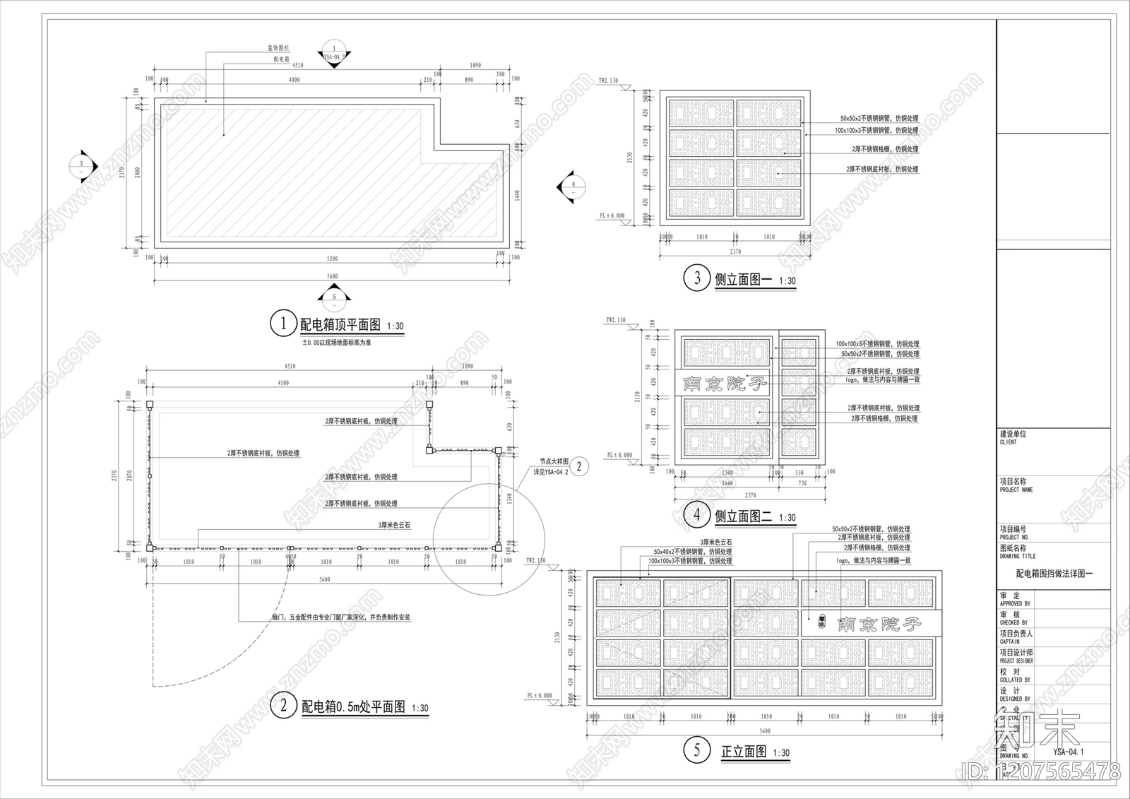
新中式围挡 新中式电箱围挡 新中式外立面装饰 施工图
1/
2
Previous
Next
新中式围挡CAD下载
ID: 1207565478
复制
上传作者
ID:64824478
上传时间
2025-12-31
文件大小
1.58M
设计风格:
--
CAD版本:
--
包含文件:
CAD
授权
独家
立即下载
收藏
分享
举报
相关推荐
综合
景观小品
围挡
亭子
廊架
景墙
综合景观小品
雨棚
围墙
挡土墙
入口