CAD频道
CAD图库
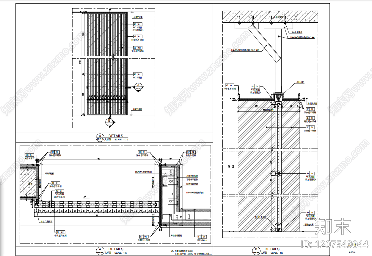
综合门节点 玻璃地弹簧门节点 玻璃格栅门节点 格栅地弹簧门节点 地弹簧门...
1/
4
Previous
Next
综合门节点CAD下载
ID: 1207543044
复制
上传作者
MUMU
上传时间
2025-12-30
文件大小
0.64M
设计风格:
--
CAD版本:
CAD2007
包含文件:
CAD
授权
独家
立即下载
收藏
分享
举报
相关推荐
综合
门节点
综合门节点
入户门
铁艺大门
月洞门
玻璃门节点
推拉门节点
隐形门节点