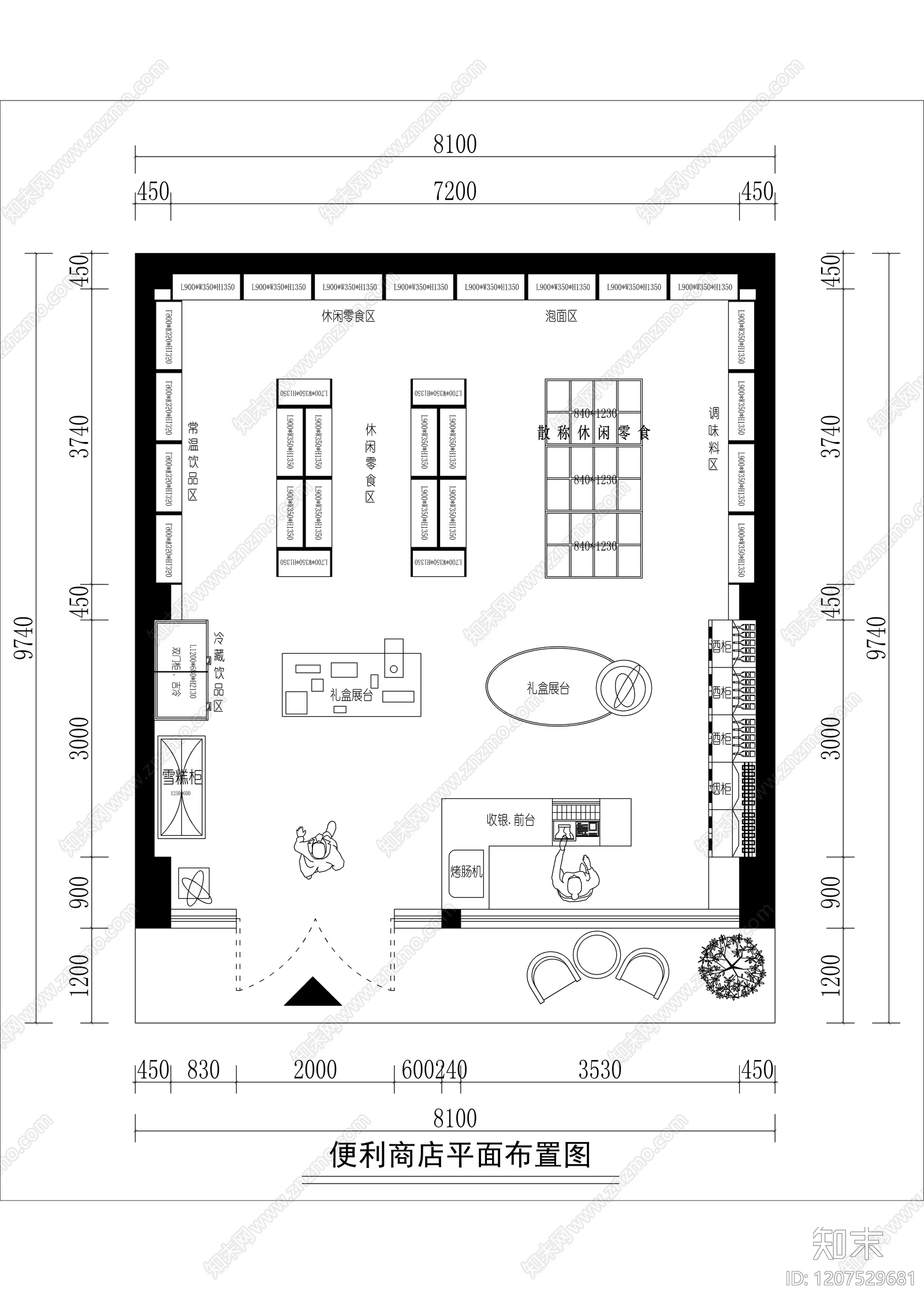
现代原木超市施工图下载【ID:1207529681】

现代原木超市CAD下载

ID: 1207529681
复制
上传作者
Ava(互关)Ava(互关)

上传时间2025-12-29

文件大小1.71M

设计风格:--

CAD版本:CAD2007

包含文件:CAD

授权独家

立即下载
收藏
分享
举报
相关推荐
综合
商业空间
超市
售楼处
商场
其他商业空间
服装店
书店
美甲店
珠宝店
4s店