CAD频道
CAD图库
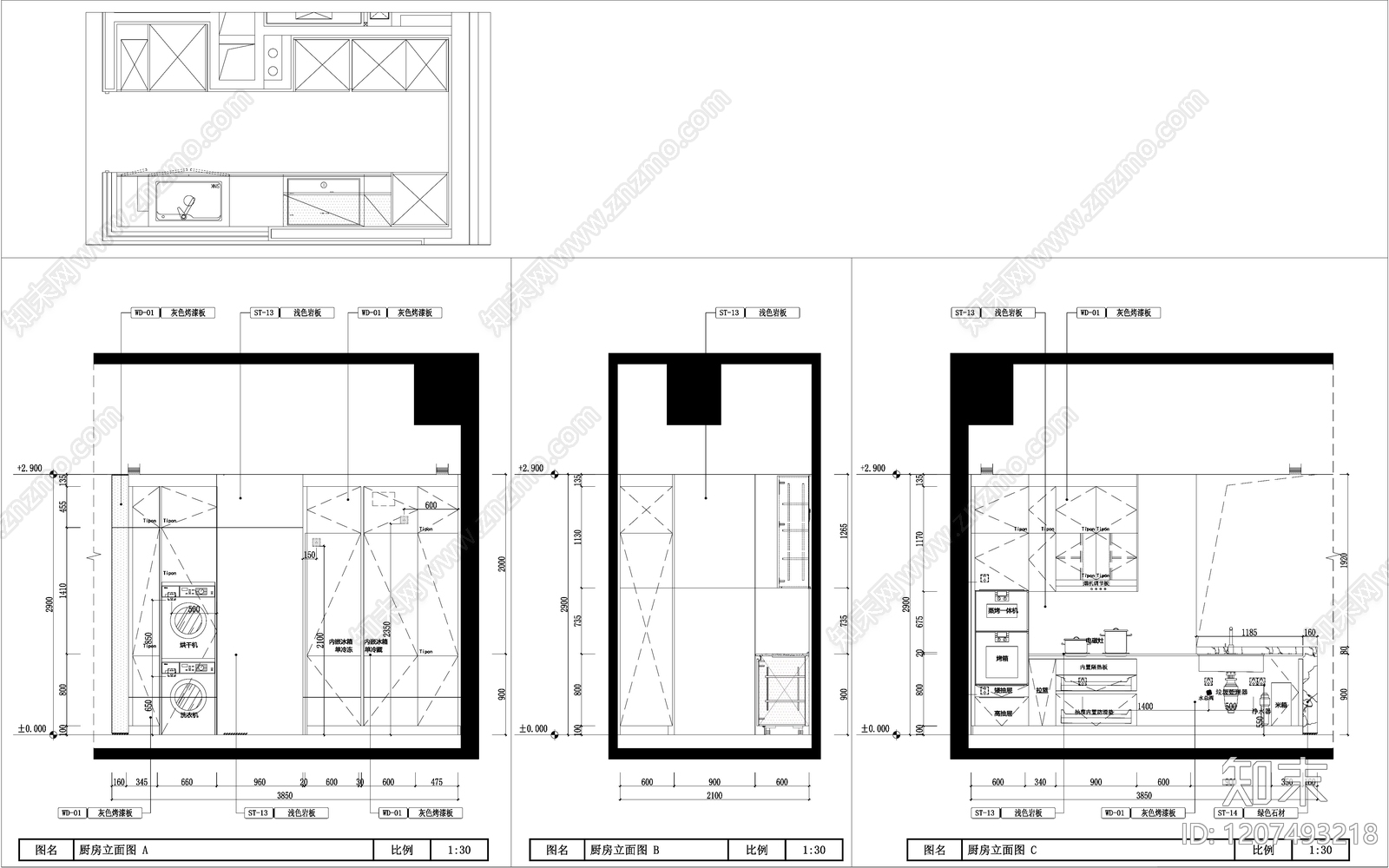
现代新中式厨房 厨房立面图 现代隔扇布局 厨柜电器用品 厨房布局 施工图
1/
3
Previous
Next
现代新中式厨房CAD下载
ID: 1207493218
复制
上传作者
XE1982
上传时间
2025-12-27
文件大小
0.98M
设计风格:
--
CAD版本:
CAD2014
包含文件:
CAD
授权
独家
立即下载
收藏
分享
举报
相关推荐
综合
家装局部空间
厨房
客厅
餐厅
卫生间
卧室
书房
衣帽间
客餐厅
儿童房