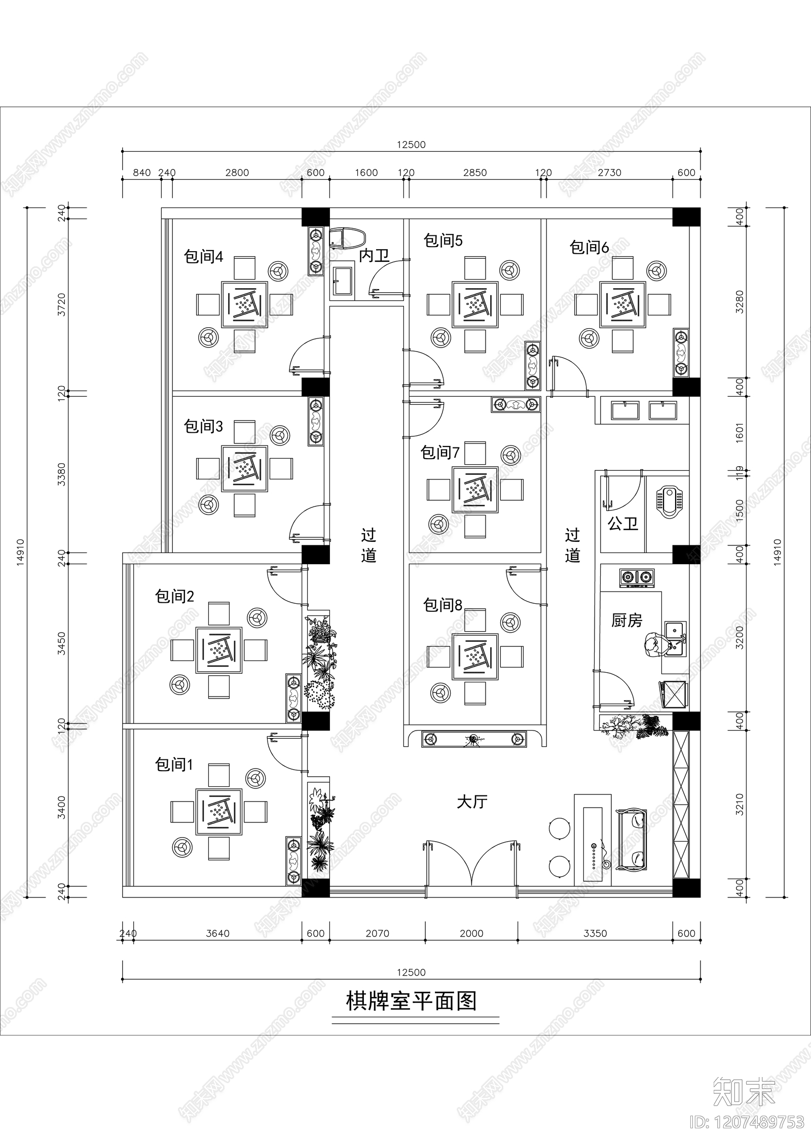
新中式原木棋牌室施工图下载【ID:1207489753】

新中式原木棋牌室CAD下载

ID: 1207489753
复制
上传作者
Ava(互关)Ava(互关)

上传时间2025-12-27

文件大小3.5M

设计风格:--

CAD版本:CAD2007

包含文件:CAD

授权独家

立即下载
收藏
分享
举报
相关推荐
综合
休闲娱乐空间
棋牌室
会所
美容院
理发店
电影院
茶馆
健身房
KTV
酒吧