CAD频道
CAD图库
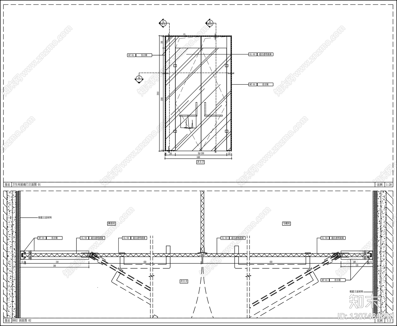
玻璃门节点 平开玻璃门 卫生间玻璃门 双开玻璃门节点 门节点 施工图
1/
5
Previous
Next
玻璃门节点CAD下载
ID: 1207486050
复制
上传作者
XE1982
上传时间
2025-12-27
文件大小
0.64M
设计风格:
--
CAD版本:
CAD2014
包含文件:
CAD
授权
独家
立即下载
收藏
分享
举报
相关推荐
综合
门节点
玻璃门节点
入户门
铁艺大门
月洞门
推拉门节点
隐形门节点
综合门节点