CAD频道
CAD图库
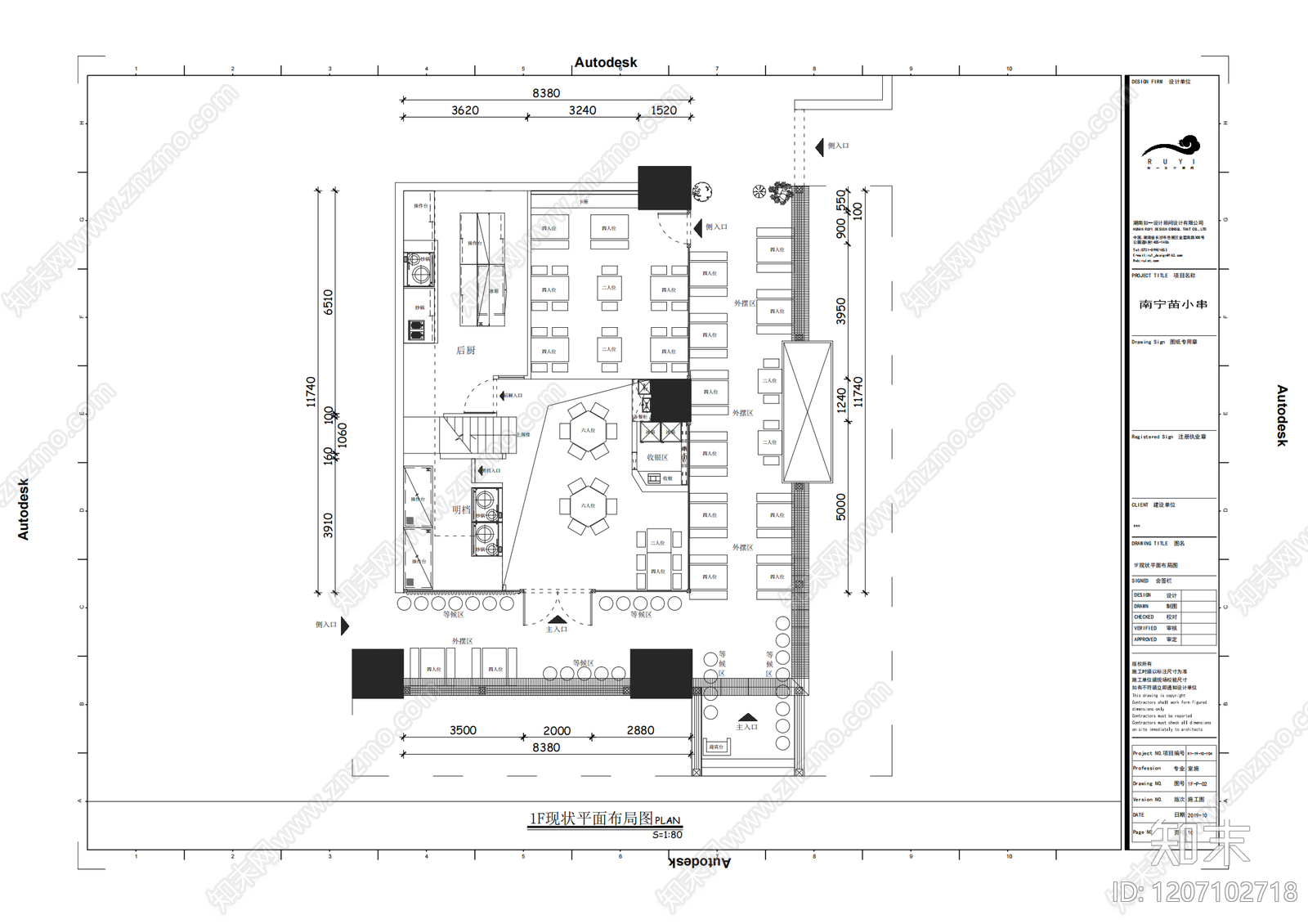
新中式烧烤店 新中式原木烧烤店 施工图
1/
4
Previous
Next
新中式烧烤店CAD下载
ID: 1207102718
复制
上传作者
小趴菜园
上传时间
2025-12-24
文件大小
101.16M
设计风格:
--
CAD版本:
CAD2004
包含文件:
CAD
授权
独家
立即下载
收藏
分享
举报
相关推荐
综合
餐饮空间
烧烤店
中餐厅
西餐厅
快餐店
自助餐厅
茶餐厅
其他餐饮空间
食堂
奶茶店