CAD频道
CAD图库
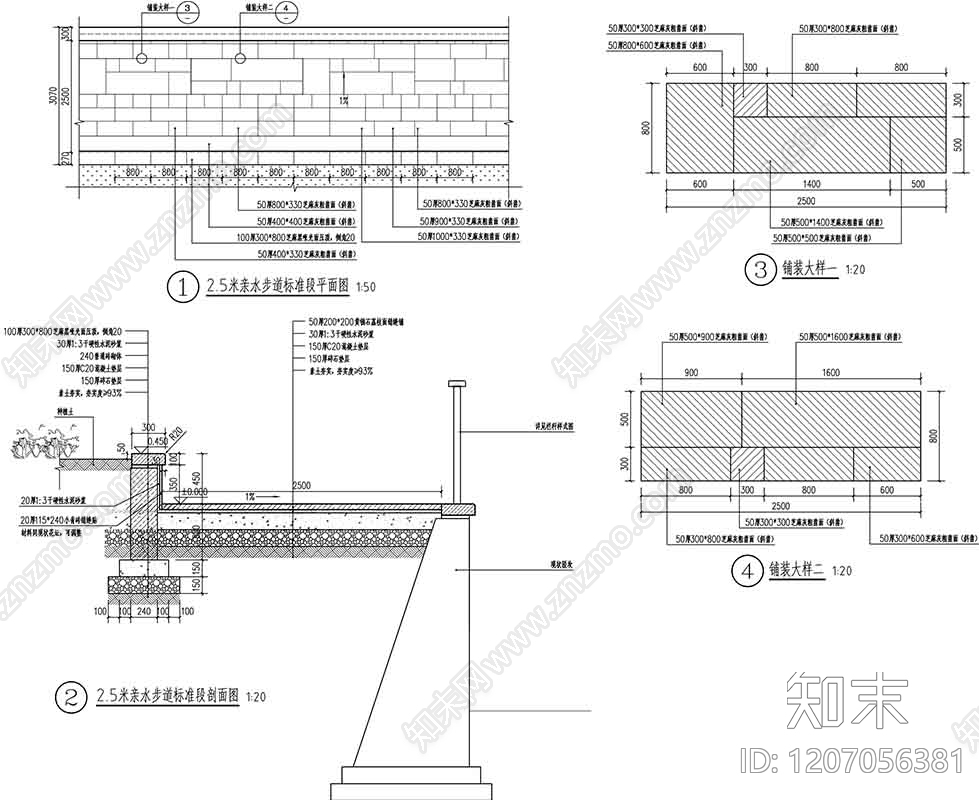
新中式现代栈道 沿河 游步道 有高差 施工图
1/
4
Previous
Next
新中式现代栈道CAD下载
ID: 1207056381
复制
上传作者
如左所述
上传时间
2025-12-22
文件大小
0.38M
设计风格:
--
CAD版本:
T20 天正建筑 V5.0
包含文件:
CAD
授权
独家
立即下载
收藏
分享
举报
相关推荐
综合
景观小品
栈道
亭子
廊架
景墙
综合景观小品
雨棚
围墙
挡土墙
入口