CAD频道
CAD图库
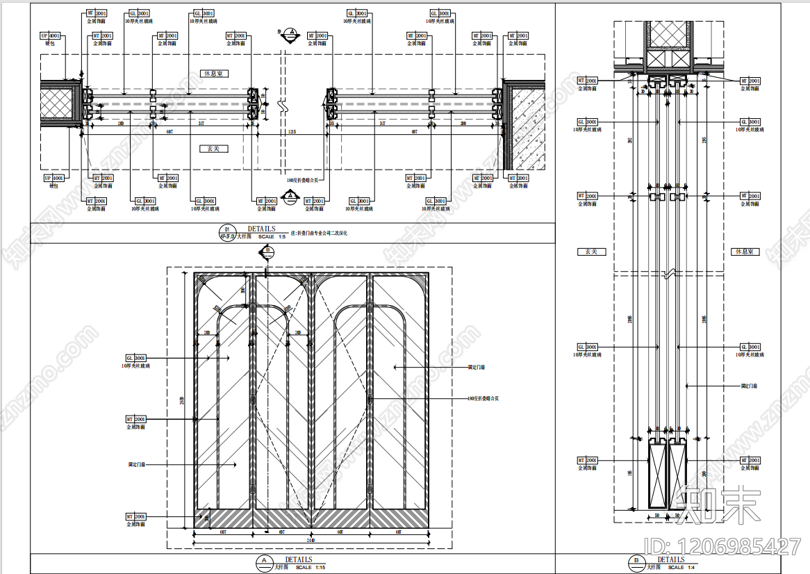
玻璃门节点 玻璃折叠门大样 180°玻平开门 折叠门节点 施工图
1/
2
Previous
Next
玻璃门节点CAD下载
ID: 1206985427
复制
上传作者
MUMU
上传时间
2025-12-19
文件大小
0.49M
设计风格:
--
CAD版本:
CAD2007
包含文件:
CAD
授权
独家
立即下载
收藏
分享
举报
相关推荐
综合
门节点
玻璃门节点
入户门
铁艺大门
月洞门
推拉门节点
隐形门节点
综合门节点