
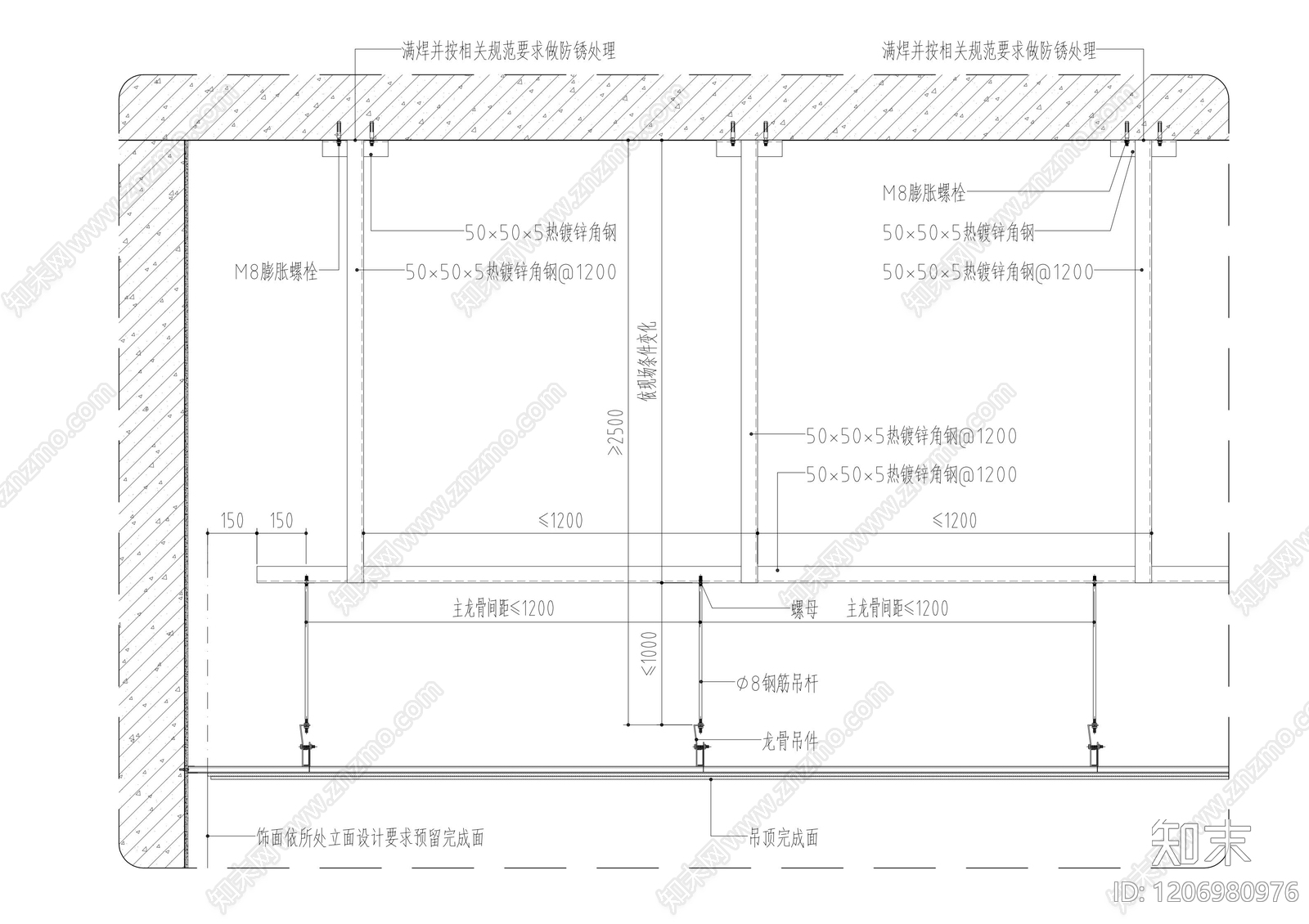
吊顶节点CAD下载
ID: 1206980976
复制
上传作者
Master Roshi
Master Roshi上传时间2025-12-19
文件大小0.65M
设计风格:--
CAD版本:CAD2004
包含文件:CAD
授权独家
立即下载
收藏
分享
举报
相关推荐
综合
吊顶节点
方通吊顶
格栅吊顶
扣板吊顶
软膜天花
铝单板吊顶
GRG吊顶节点
石膏板吊顶
矿棉板吊顶

Master Roshi上传时间2025-12-19
文件大小0.65M
设计风格:--
CAD版本:CAD2004
包含文件:CAD
授权独家