CAD频道
CAD图库
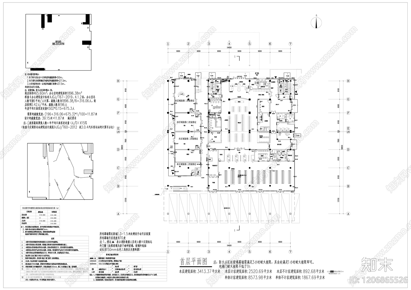
交通空间 客运站平面设计 车站室内 施工图
1/
3
Previous
Next
交通空间CAD下载
ID: 1206865526
复制
上传作者
来了老弟
上传时间
2025-12-17
文件大小
0.72M
设计风格:
--
CAD版本:
--
包含文件:
CAD
授权
独家
立即下载
收藏
分享
举报
相关推荐
综合
公共空间
交通空间
其他公共空间
公共卫生间
宿舍
门头
服务中心
活动中心
会展
母婴室