1/10


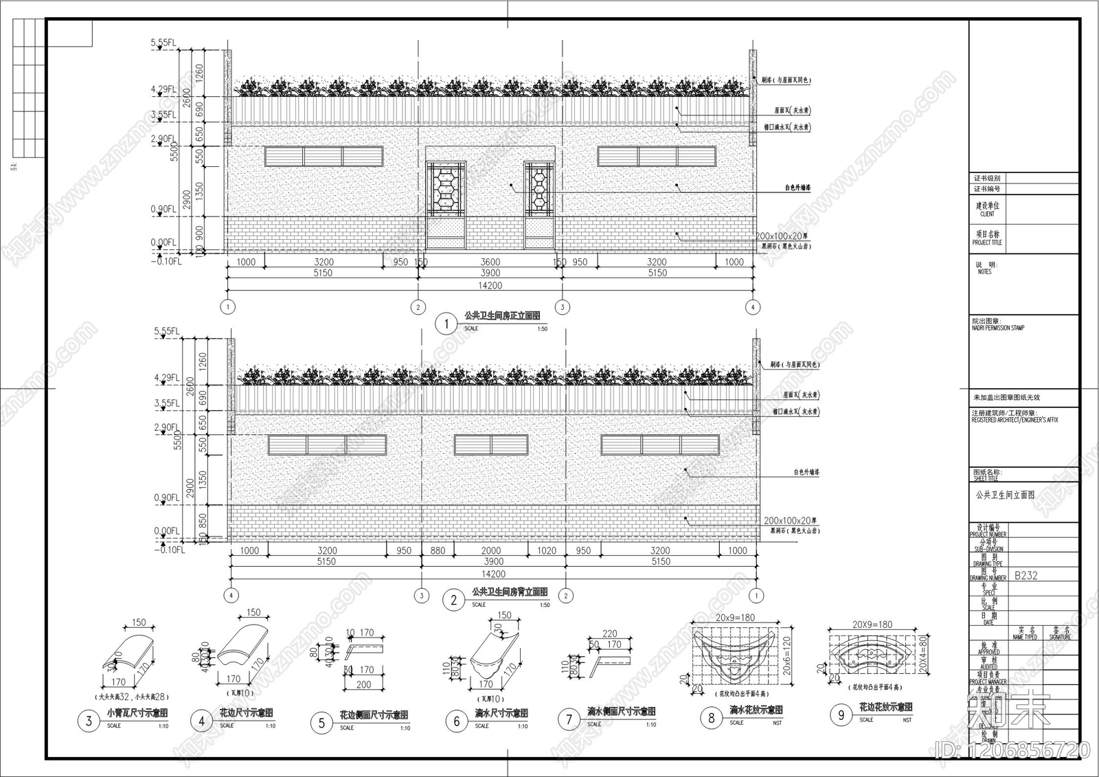
新中式公共卫生间CAD下载
ID: 1206856720
复制
上传作者
ID:64824478
ID:64824478上传时间2025-12-17
文件大小0.95M
设计风格:--
CAD版本:CAD2013
包含文件:CAD
授权独家
立即下载
收藏
分享
举报
相关推荐
综合
公共空间
公共卫生间
其他公共空间
宿舍
门头
服务中心
活动中心
会展
母婴室
档案室


ID:64824478上传时间2025-12-17
文件大小0.95M
设计风格:--
CAD版本:CAD2013
包含文件:CAD
授权独家