CAD频道
CAD图库
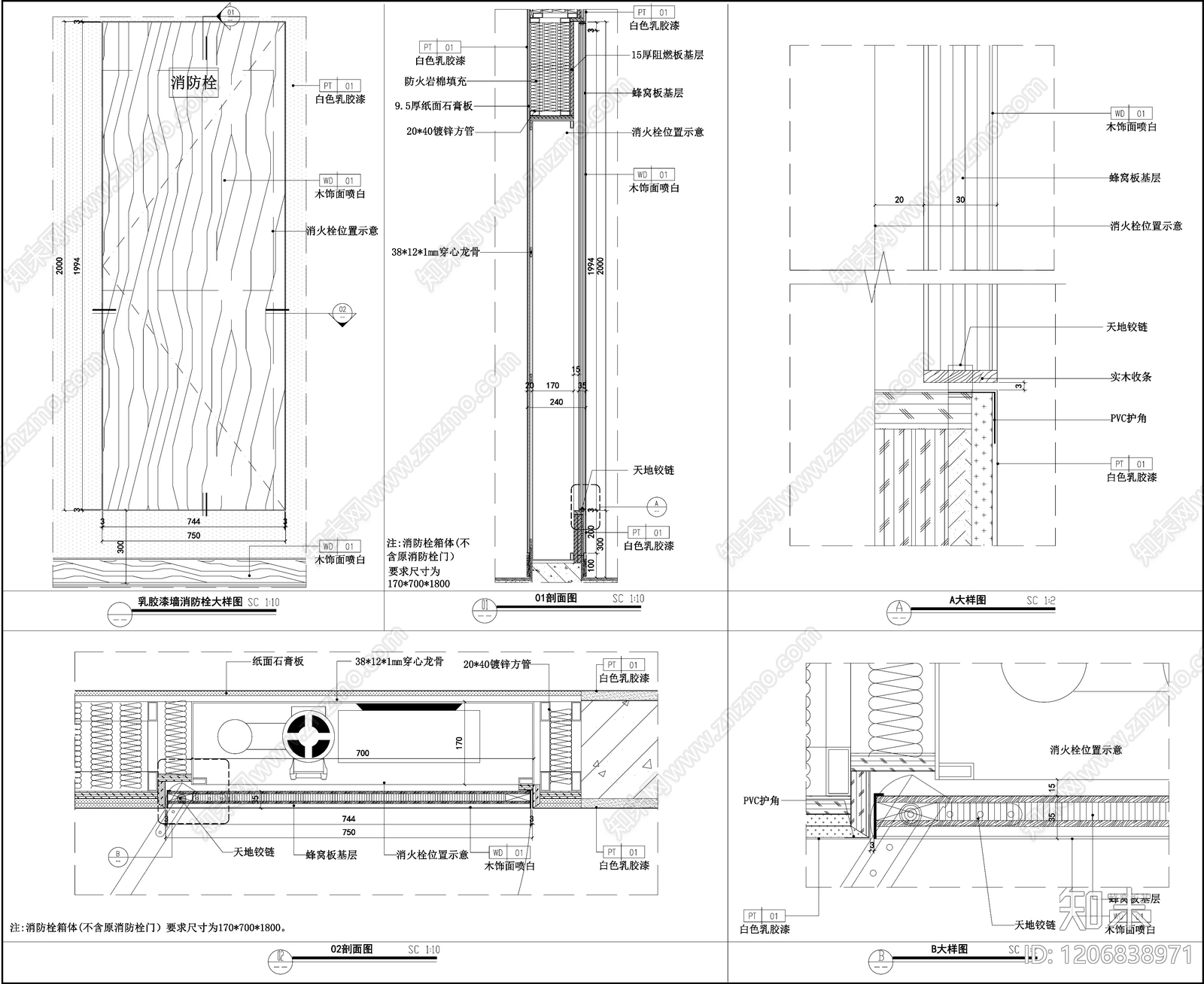
综合门节点 乳胶漆墙消防栓 消防栓大样图 木门 消防栓节点 施工图
1/
2
Previous
Next
综合门节点CAD下载
ID: 1206838971
复制
上传作者
XE1982
上传时间
2025-12-16
文件大小
2.14M
设计风格:
--
CAD版本:
CAD2014
包含文件:
CAD
授权
独家
立即下载
收藏
分享
举报
相关推荐
综合
门节点
综合门节点
入户门
铁艺大门
月洞门
玻璃门节点
推拉门节点
隐形门节点