CAD频道
CAD图库
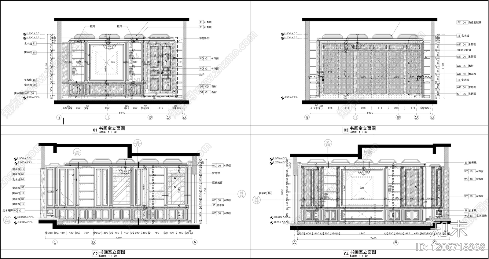
家装立面图 欧式书画室立面图 木饰面背景墙 墙面节点 天花节点 施工图
1/
4
Previous
Next
家装立面图CAD下载
ID: 1206718968
复制
上传作者
XE1982
上传时间
2025-12-12
文件大小
1.78M
设计风格:
--
CAD版本:
CAD2014
包含文件:
CAD
授权
独家
立即下载
收藏
分享
举报
相关推荐
综合
立面图/剖面图
家装立面图
建筑立面图
景观立面图
工装立面图
立面图
剖面图