1/9


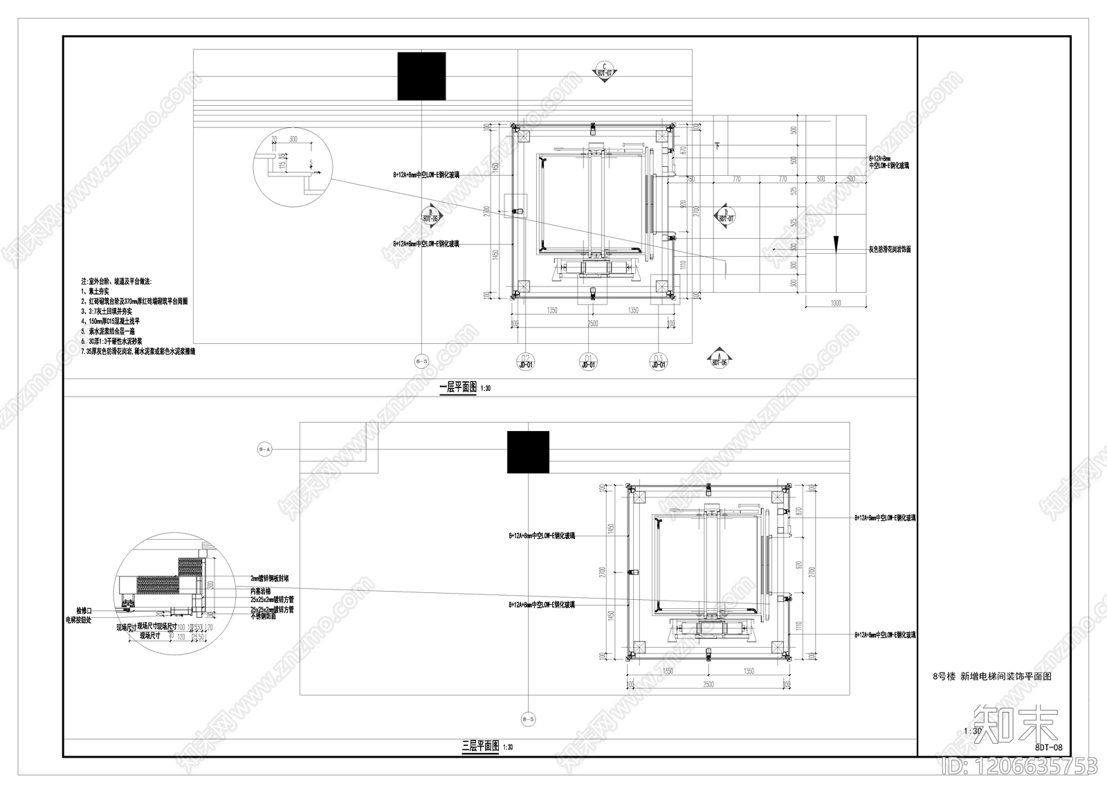
交通空间CAD下载
ID: 1206635753
复制
上传作者
Cc建筑装饰深化设计
Cc建筑装饰深化设计上传时间2025-12-10
文件大小3.02M
设计风格:--
CAD版本:CAD2014
包含文件:CAD
授权独家
立即下载
收藏
分享
举报
相关推荐
综合
公共空间
交通空间
其他公共空间
公共卫生间
宿舍
门头
服务中心
活动中心
会展
母婴室


Cc建筑装饰深化设计上传时间2025-12-10
文件大小3.02M
设计风格:--
CAD版本:CAD2014
包含文件:CAD
授权独家