CAD频道
CAD图库
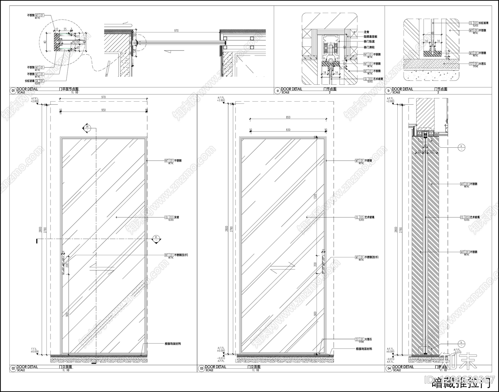
综合门节点 暗藏玻璃推拉门 轨道移门 木饰面单开门 卧室木门 门节点 施...
1/
4
Previous
Next
综合门节点CAD下载
ID: 1206620367
复制
上传作者
XE1982
上传时间
2025-12-10
文件大小
1.62M
设计风格:
--
CAD版本:
CAD2014
包含文件:
CAD
授权
独家
立即下载
收藏
分享
举报
相关推荐
综合
门节点
综合门节点
入户门
铁艺大门
月洞门
玻璃门节点
推拉门节点
隐形门节点