CAD频道
CAD图库
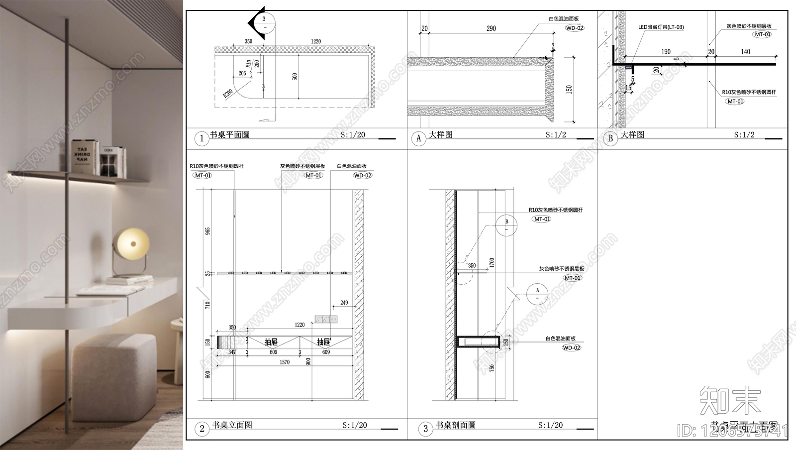
综合家具节点 书桌节点 简易书桌 桌子节点大样图 施工图
1/
2
Previous
Next
综合家具节点CAD下载
ID: 1206575741
复制
上传作者
XE1982
上传时间
2025-12-08
文件大小
4.77M
设计风格:
--
CAD版本:
CAD2014
包含文件:
CAD
授权
独家
立即下载
收藏
分享
举报
相关推荐
综合
家具节点详图
综合家具节点
吧台节点
壁炉节点
柜体节点
卡座节点
前台节点