CAD频道
CAD图库
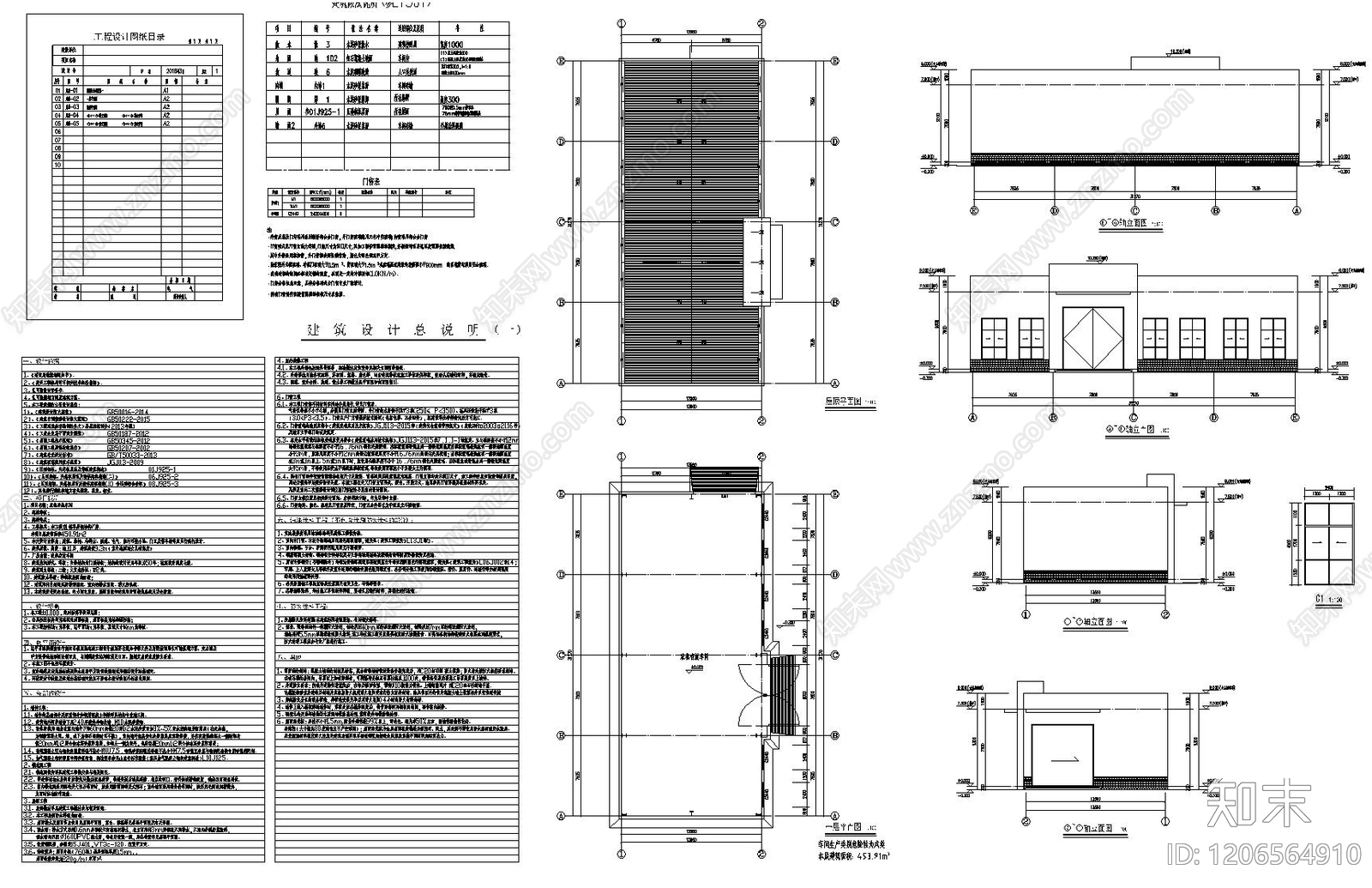
其他乡村景观 乡村农机停放板房 施工图
1/
4
Previous
Next
其他乡村景观CAD下载
ID: 1206564910
复制
上传作者
卡皮巴拉
上传时间
2025-12-08
文件大小
1.17M
设计风格:
--
CAD版本:
天正建筑 2014
包含文件:
CAD
授权
独家
立即下载
收藏
分享
举报
相关推荐
综合
乡村景观
其他乡村景观
乡村振兴
乡村改造
农场